380㎡新中式 | 庭院人家,山水幽梦
发布时间:2023-07-24

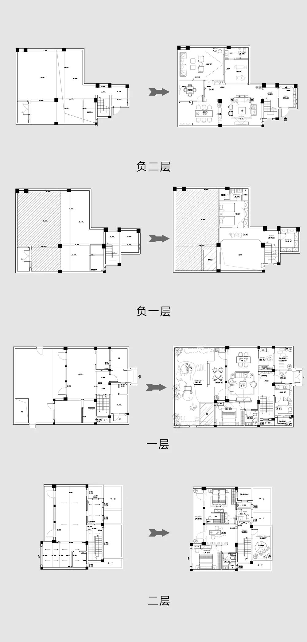
| 项目信息 地址:春风燕语 城市:中国 杭州 户型:中式合院 面积:380㎡ 风格:新中式 设计施工:浙江南鸿装饰 作品前言 排屋大宅这种多层的空间,注定能够赋予生活超越一般的可能。奢阔大气的环境,满足个性多元的生活需求,创造一方纯粹私享空间。 (外景) (内景) 本案地下的活动空间相较地上会更大,设计师通过改造天井,让地下空间的利用更为合理高效,安装的电动天窗让阳光可以直照入地下2层,满足各样生活场景的采光需求。 倚栏临窗,观星赏月,流年风雅。设计结合了传统中式的典雅和现代风格的明练,为业主打造出充满文化意境的丰韵居所,移步易景,虚实相生。 户型设计 实景呈现 01 玄关 门厅使用木作提供收纳鞋物的空间,增强功能性,与内厅之间则是以中式经典的格栅搭配意象造景作为隔断,格局贯通的同时又有了合理的分隔规划。 02 客厅 居室的硬装风格较为明练简洁,软装制式则遵循中式传统,形色克制、庄重,厚重的深色木材铺叙深沉的文化底蕴,空间既具有东方韵味,又能兼顾现代生活的实用性。 对窗而坐,屋外的庭院景致即映入眼帘,春夏秋冬的朝夕之变,端坐于室内便能清楚感知,恍惚间仿佛穿梭了时空,沉浸入风雅幽梦。 03 餐厅 餐厅与客厅连通,整体格局颇为大气。对称的布局还原中式传统,古典色彩的庄重搭配山水画的灵巧,不同载体不同气质的中式元素糅合为一,围塑出古色古香的就餐环境。 04 楼梯 借助灯光展现的悬浮感楼梯设计,时尚的现代笔触加持,倾力呈现着生动美观的人居生活。 05 卧室 现代高级灰的色彩与硬包制式,加上独特的吊顶设计,共同装饰着这间素雅卧室的灵韵,中式窗扇引景入室,诗意日常就此与心相融。 飞檐青瓦下的现代起居生活,光是简单的描绘便能让人心生无限的向往。室内用简约的背景墙造型与配色突出静谧之感,并营造恬淡舒展的家庭氛围。 06 地下休闲区 挑高的地下室空间,华丽的灯饰垂悬而下,展现着非凡的气势。光亮的大理石墙面映衬室内的通透气质,镂空屏风立于会客区与品茶区之间,错落有致的布局增添了层次感与艺术感。 品茶区位于天窗下方,采光丰沛,视野舒展开阔,典雅禅意正随着茶香而慢慢飘散~























在线预约专享优惠
x
联系电话 :400-8800-618