丽晶国际236㎡ | 出片率100%!他家的「黑色极简」成了朋友圈摄影赛爆款
发布时间:2025-09-29
繁忙都市中,高楼如林,犹如一座钢筋的迷宫。
当白昼的喧嚣退场,夜的故事便悄然拉开了序幕。
林立的高楼将灯火洒落室内,像是一片静谧的星海,温柔而深邃。
在这片光的帷幕下,我们比任何时候都更需要一方属于自己的天地,一个能够安放我们所有情绪的居所。
从一盏灯的色温,到一面墙的质感,空间每一处细节都是对生活的最高礼赞。




本案这方意式跃层,以利落黑白为基调,融入微水泥、黑色木作柜、岩板、不锈钢、玻璃等多重材质,构筑丰富的肌理层次。
室内场域借开放式以及挑空设计,把视野打开,将空间尺度放大,打造出大气、时尚又饱含细节的都市摩登格调。

"
于喧嚣之上,
构建一处可眺望、
可沉浸的理想栖所。
"


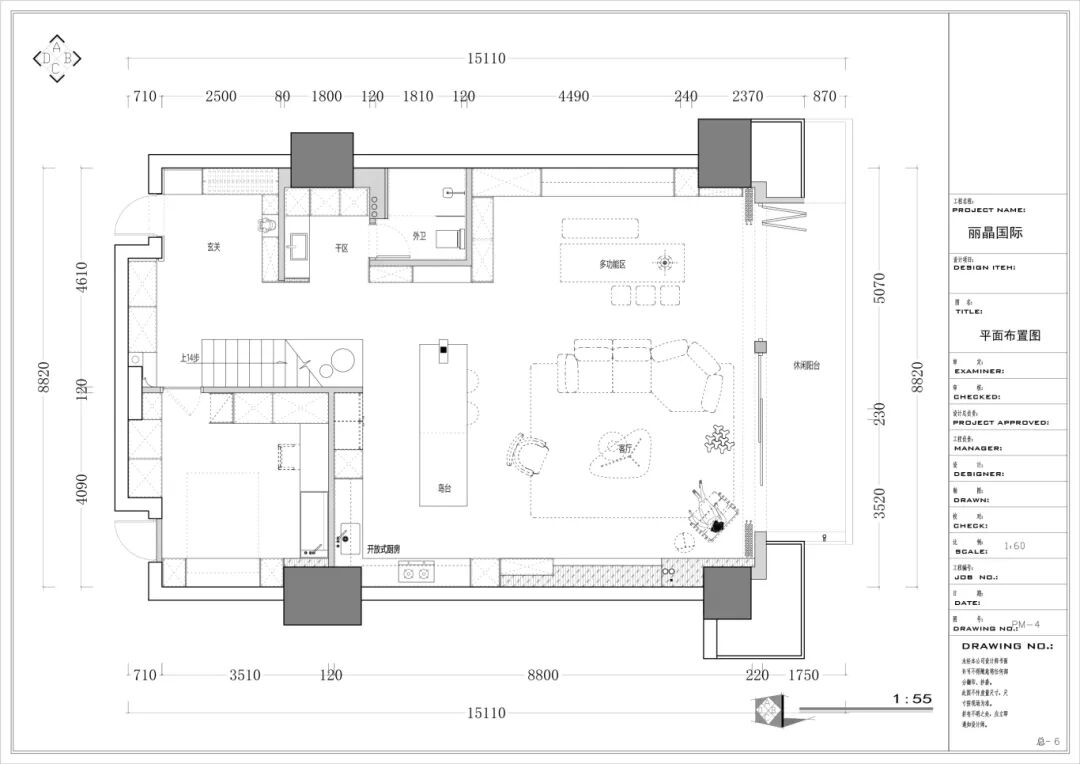
F1
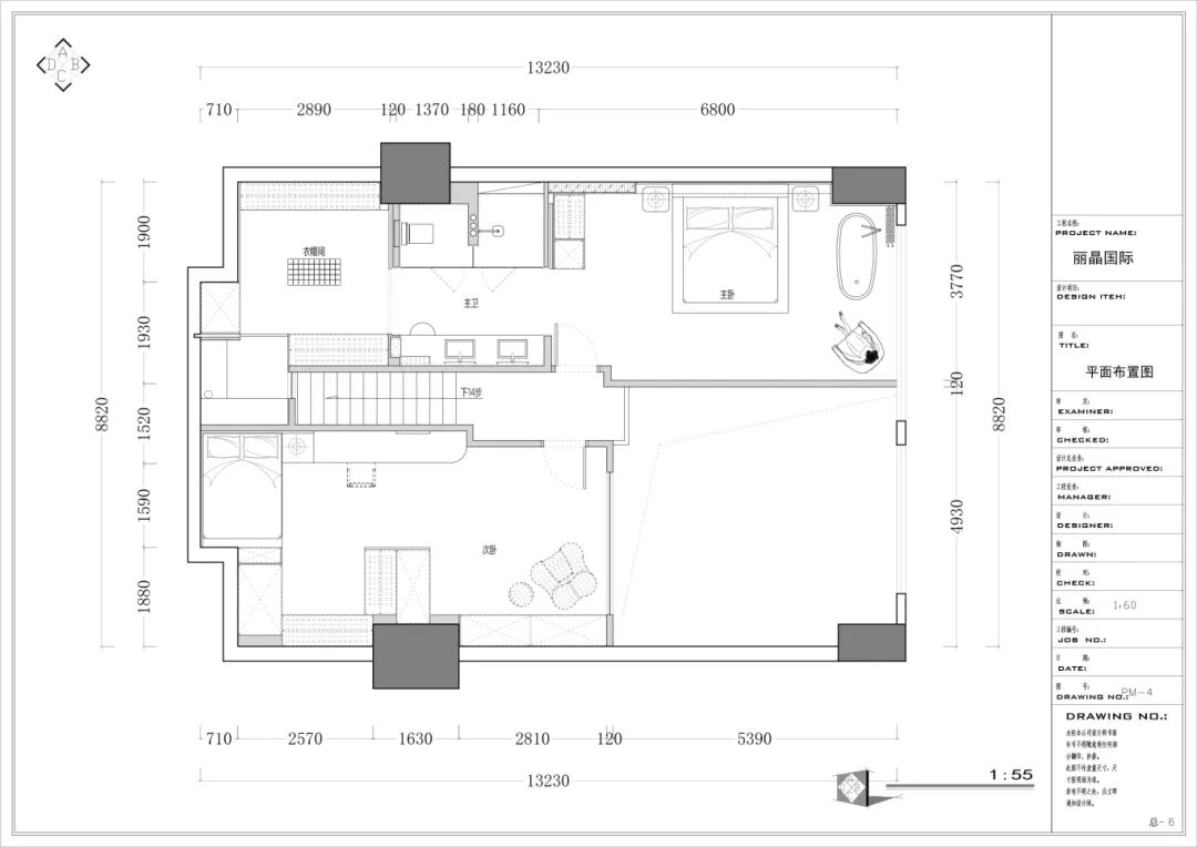
F2

CASE APPRECIATION
▽
Hallway
玄关

玄关沿转角结构定制丰富的储物柜,统一的黑色木作为室内铺垫极简基调。入门一侧设置了换鞋卡座,同步融入灵活的物品挂放区,实用与颜值兼得。

端景台上,一只labubu安静伫立,以俏皮趣味点亮归家时刻,将入户仪式感悄然升级。
Living Room
客厅

光是这个家中当之无愧的主角。白昼,阳光慷慨涌入,使居室浸润在无限温柔之中;夜晚,华灯初上、车流如织,绘就一幅美轮美奂的都市画卷。


客厅运用挑空设计与极简线条延展空间尺度,黑白色赋予利落而深邃的气场。无论是阅读一本好书、聆听一曲爵士,亦或只是静静凝视窗外美景,这方空间都能提供恰到好处的氛围。

向上延伸的电视背景墙以大面积岩板铺就,富于视觉张力,与家具也有一个巧妙的呼应。墙面与家具在肌理、色调上的默契配合,进一步强化空间的统一感。

二楼开一扇小窗面向客厅,既平衡了深浅视觉,又为上下层空间塑造出独特而有趣的对话体验。


客厅软装选配黑色花瓣沙发,搭配宝格丽大理石茶几,低调中透露着精致感,空间扬起时尚小资的氛围,家也俨然化身为自媒体的出片现场。自然光在空间中自由流动,模糊功能与美学的界限;不拘一格的布局,让每一处角落都成为可被观赏的风景。
Dining Room
餐厅


临近阳台向光侧的还有餐厅区域。餐厅不只是用餐空间,更融合了小酌、咖啡、轻食、聚餐等多重可能,无论独处亦或party,不同的状态、不同的心境,皆可在此处尽情绽放。

客餐厨之间不再是独立的模块,而是连贯成一体的高功能性场景。设计深度回应着都市人的工作、生活节奏,在不同区域的开放交融中,满足社交聚会和自我疗愈的双向需求。
Kitchen
厨房


视线来到客厅的另一侧——开放式厨房区域。
统一的色调构筑让视觉转换无比流畅,上层使用玻璃隔断面,玻璃的透光性也让整体挑空区的尺度与层次得到进一步延展。


厨区的立柱包裹银色金属饰面,黑色岩板岛台质感高级,线条干净利落。隐形暖色灯光自缝隙间洒落,勾勒出材质边界,点亮黑与银的碰撞,营造别具一格的工业美学。


橱柜选用银色PET门板,嵌入式厨电与柜体相融,金属质感、科技氛围交织,共同构筑出一个未来感十足的厨房界面。这里不仅是烹饪的空间,更成为了彰显审美与品质的舞台。
Stairs
楼梯


楼梯采用黑色踏步搭配玻璃扶手,制造轻盈悬浮的效果,极富高级感。设计同步考量行走体验——踏步灯形成具有序列感的节奏,建筑自身的结构、体块与线条组合,打造极具艺术感的室内景观。
Bedroom
卧室


二层主卧延续了低奢黑白色调,更于窗边置入亚克力浴缸,搭配罗马帘,轻松营造优雅、惬意的酒店式氛围。

床头背景墙设计统一的黑色格栅饰面,兼具实用收纳与立体造型。下方组合壁纸,于简约中勾勒层次细节。黑色床品、床头柜,进一步烘托低调沉静之感。




精心设计的浴缸角落,是对生活之美最温柔的赞颂。它脱离庸常,将功能升华为仪式,并就此展开独属于个人的想象和叙事。当夜色渐沉,高楼大厦的灯光悄然漫入,只需闭上双眼,感受水流轻抚肌肤,仿佛就能聆听到内心与世界的对话...


次卧是给家中小公主准备的房间,以弹性设计为理念,将宽敞的空间依序划分为睡眠区、储物区、学习区和休闲区。里侧做地台床,搭配波浪造型软包,细腻柔软,营造极舒适的包裹感。
Bathroom
卫生间


主次卫均采用干湿分离布局,延续室内大量岩板材质的运用,进一步强化现代意式风格的秩序美学。完整流畅的设计力加持下,卫浴空间也不再是隐蔽的功能角落,而是融入进整体居住美学的有机组成部分。
P.I. 项目信息
项目名称:丽晶国际
设计风格:意式极简
项目类型:跃层
项目地点:中国 · 杭州
项目面积:236㎡
项目服务:设计·施工·硬装·软装 全案设计
设计单位:浙江南鸿装饰
施工单位:浙江南鸿装饰
在线预约专享优惠
x
联系电话 :400-8800-618