御湖半岛102㎡ | 轻法式混搭中古,收纳也能做这么好看的装饰?!
发布时间:2025-10-27

本期要为大家分享一套102方轻法式中古风的案例。
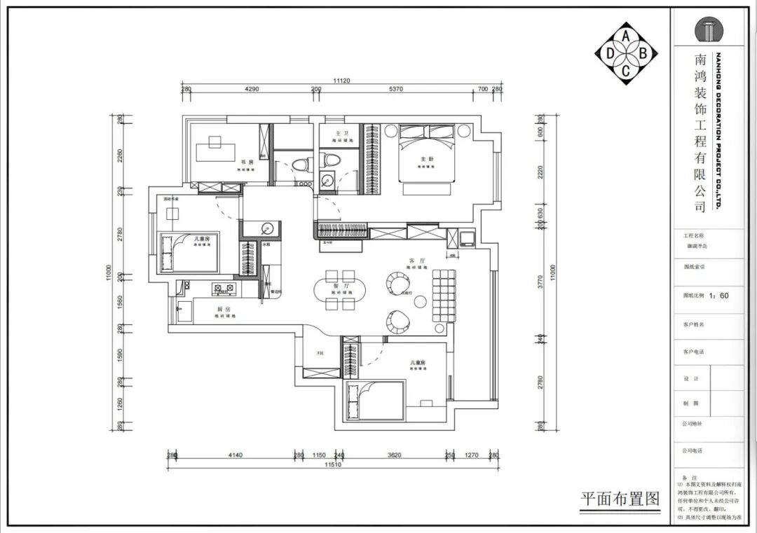
空间使用奶油白打底,搭配黑色和木系的元素,以及经典弧形线条与洞洞元素,家变得柔和又灵动。遵循“减法”准则的硬装,于细节中雕琢,以中古为韵,悄然释放复古的魅力。 当居室功能被顺利转译为视觉语言,家便不再只是居所,而成为能够与时间对话的叙事场。 设计师用轻法式中古的语境,将储物收纳与造型装饰巧妙融合,“藏与露”的平衡之术,既是对空间的高效利用,又是一种对生活仪式感的温柔唤醒。 ▲平面方案 玄关铺花砖并作下沉式布局,为入户第一步注入了生动的情调。向内延伸的公区域则通铺人字拼地板,与玄关花砖的交界处,设计师用一道弧线完成过渡,借以弱化材质的分割感,实现温柔的转折。 客厅采用的是相比传统布局更加自由的去电视设计,背景墙做收纳柜,并添入了趣味的洞洞元素。简洁的底色轻盈通透,顶面一盏吊扇灯作点睛之笔,为空间注入复古韵味与怀旧气息。 包豪斯风休闲椅搭配边几,灵活可变的组合,随时应主人心意而动,诠释着惬意生活的内涵。 一组低饱和度的豆腐块沙发,与同色系翡翠绿的豆芽落地灯组合,轻巧勾勒一方温暖而幸福的休闲角落。 餐区通过黑色调法式复古风餐桌与中古的餐椅以及一盏蚕丝吊灯搭配,整体沉静中又有迷人的优雅气质,让三餐都成为值得回味的生活图景。 素白的墙面用弧线勾勒出温润轮廓,复古风餐边柜上摆放一瓶绿意,为空间播下诗性的种子。 餐厅的储物规划同样轻盈利落,水吧台结合封闭式收纳柜与开放搁板,常用的杯盏、食材等可随手取放,杂物则统一收进柜子,严谨的收纳逻辑,让生活井井有条。 厨房将视觉重心放在地柜,赋予空间沉稳个性。烹炒区一侧墙面开壁龛,瓶罐调料触手可及。整体L型结构在水槽区抬高,高效节省空间的同时,还照顾到了日常使用的舒适度,让烹饪时光变得轻松自在。 素朴留白的卧室,能让心瞬间平静下来。空间融合了美式的复古质感与中式的禅意韵味,碰撞出独特的格调。床头一盏玉石小吊灯,澄澈温润;床尾配一组斗柜,悠闲的氛围伴随古拙肌理,在室内徐徐蔓延。 书房的这处移门兼柜门设计,在开合之间,生动演绎了”收纳即是艺术装置“的哲学。既解决了收纳难题,也将日常使用升华为一种生活仪式。 卫浴干区选用了金属边框的圆弧型镜子,搭配同系列吊柜,体量轻盈又有高颜值,同步呼应公区域整体优雅而从容的氛围。 卫生间使用玻璃隔断隔开淋浴区,阻隔水汽的同时释放出更多活动空间。通透感材质维持视觉上的连贯性,也避免了小面积卫生间容易产生的压抑与局促。 P.I. 项目信息 项目名称:御湖半岛 设计风格:轻法式中古 项目类型:四室两厅 项目地点:中国·宁波 项目面积:102㎡ 项目服务:设计·施工·硬装·软装 全案设计 设计单位:浙江南鸿装饰 施工单位:浙江南鸿装饰


















在线预约专享优惠
x
联系电话 :400-8800-618