金都华庭130㎡ | 素履以往:在雅净之所中安放自我
发布时间:2025-12-22

本案为130方现代侘寂风格的作品。
居室涂抹柔白的艺术漆,搭配温润木作与实木家具,在素朴留白间注入自然禅意,让居住变得宁静舒缓。
外在极简,内在丰盈。材料本身的肌理与温度,成为了空间情感的延伸,也让这个家得以兼具文化滋养与当代生活的舒适性。


Living Room
客厅


墙顶暖白艺术漆与地面浅色哑光大砖通铺,共同形成素净淡雅的基底,将整个空间包裹为通透一体的容器。悬浮造型的电视背景墙,与沙发背景叠加的体块互为呼应,加上圆润的转角处理,进一步柔化了空间轮廓。

室内开放的格局令视野向走廊端无束缚延伸,通透感被放大至每一寸肌理。顶面无主灯设计勾勒点、线、面的分明层次,明与暗相互渗透,形成柔和的张力,让空间在静谧中流动出无声的节奏。


白色弧形主沙发搭配侘寂风经典藤编茶几,以及墨绿色的螃蟹椅,打造一方质感柔和、高级的休闲与会客场域。阳光透过纯洁梦幻帘,轻轻荡开幸福的光晕,让心不由自主安定下来。



立面以木材作不完全式包裹,营造自然雅韵,亦赋予空间呼吸感。隐形储物设计将日常痕迹藏于无形,外观线条保持整洁统一,在装饰与隐匿之间取得的平衡,贴合了当代生活对于“诗意栖居”的期盼。
Dining Room
餐厅


餐厅质地同样轻净通透,延伸了空间的视觉尺度。立面嵌入无把手储物柜,线条平整;餐桌衔接岛台,强化功能上的互动性,也在极简的造型中,赋予场景以连续的现代气质。
Kitchen
厨房

浅咖色系橱柜自然可亲,厨房整体狭长而开放的布局,利用了与餐厅的天然距离,形成功能上的柔性分隔,既维持了区域间的高频互动,也在一定程度上缓解了油烟弥漫的困扰,兼顾实用和美感。
Master Room
主卧

简白艺术漆继续铺叙着墙顶,垭口弯出优雅的弧度,传递素朴暖意。阳光自窗畔轻轻洒入,投下宁静与生机。

木系与藤编元素交织在一起,为空间注入充盈的自然呼吸感。背景墙留白,并以简洁又具有艺术感的造型勾勒灵动的立体光影,令这方安静的睡眠地,可以时刻与生活之美相拥。

主卧与主卫之间的隔断选用玻璃材质,使光能自由穿透,从而化解暗卫的采光难题,同步在视觉上延伸卧室的整体尺度。



两侧不对称的灯饰细致点缀空间,温润木质碰撞冷冽石材,看似随意的角落,都藏着精心布置的设计美学,让日常起居能浸润在仪式感之中。
Spare Room
次卧

次卧空间简约明练,书桌布置在床头一侧,为阅读、办公留出专属的角落。阳台以玻璃移门与室内空间相隔,开合之间,光线自由流动,居室也有了温度与呼吸的节奏。



半墙木饰面塑造简约的层次与轻柔的稳定感,床头柜自衣柜延伸而出,结构衔接流畅自然。阳台的落地窗将光与景引入,只需一把休闲椅,一方独处的理想角落便顺势而成。
Bathroom
卫生间



主次卫的墙地面皆通铺微水泥肌理瓷砖,放大空间感的同时更耐脏好打理。简单清晰的功能划分,在有限面积内实现了高效布局,营造简洁舒适的洗沐环境。
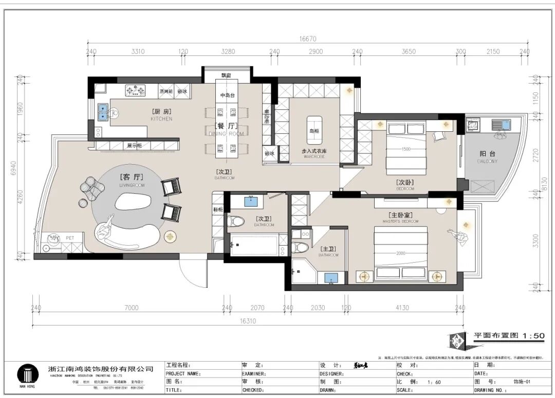
项目信息
项目名称:金都华庭
设计风格:现代侘寂
项目类型:三室两厅
项目地点:中国 · 杭州
项目面积:130㎡
项目服务:设计·施工·硬装·软装 全案设计
设计单位:浙江南鸿装饰
施工单位:浙江南鸿装饰
在线预约专享优惠
x
联系电话 :400-8800-618