160㎡现代原木:让阳光为生活镀上暖意
发布时间:2026-03-26

项目信息
PROJECT INFORMATION
地址:香柠颜家府
城市:中国·杭州
户型:四室两厅
面积:160㎡
风格:现代原木
设计团队:杭州南鸿装饰 许丽丽
设计单位:浙江南鸿装饰
施工单位:浙江南鸿装饰
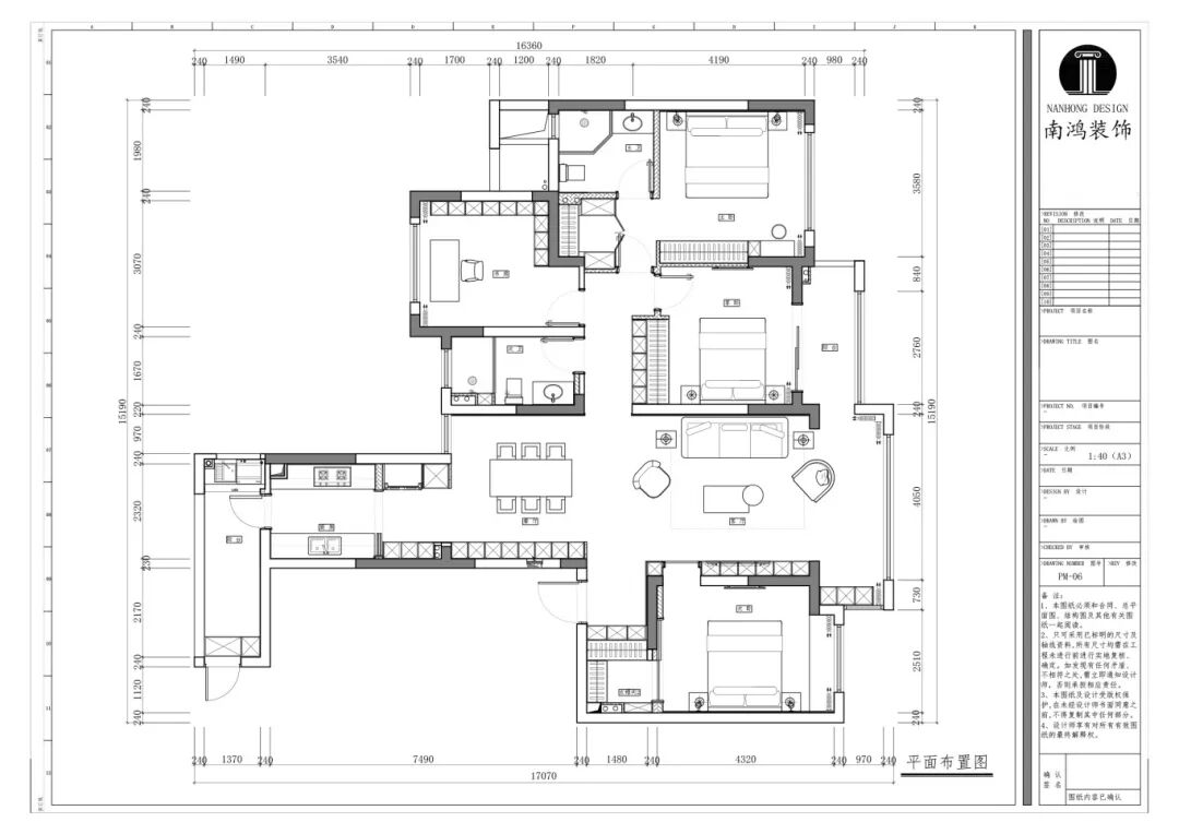
作品前言 ABOUT HOME 本案以自然格调为设计核心,在满足母子二人居住需求的同时,呈现出宁静而舒缓的空间美学。室内引入纯粹的自然元素,阳光、木质与空气温柔交织,诗意般的时间在此静默流淌~ 户型方案 LAYOUT DESIGN 实景呈现 CASE APPRECIATION No.1 玄关 玄关设计在简约中颇具细节的考量,整体原木色作基底,搭配纯白柜门,营造干净、温馨的初印象。鞋柜底部留空,方便日常穿脱,也进一步减轻体量感。优雅的结构比例、色块划分,使空间美观又大方。 No.2 客厅 温暖的材质蕴生温暖的居所。客厅使用纯净的白色与质朴的橡木色护墙作为基础,氛围简约明净、松弛自在。电视背景墙采用整体储物设计,流畅的立面让视觉干净平整。 木饰面融合了格栅线条,悄然拉伸层高。家具选配沉稳棕色沙发,与组合式现代茶几、浅色地毯及单椅,深浅交错间,层次感得到自然的舒展。 顶部采用无主灯设计,光线均匀漫射,一盏落地灯在角落静静铺开暖光,增强温馨感。阳台被包进客厅,视野敞开,圆弧形的垭口也让居室更显柔和。 No.3 餐厅 木护墙在餐厅一侧继续延展,另一侧纯白的储物餐边柜则建构起简洁利落的收纳秩序,材质与光线在此叠现出舒缓的韵律。 木质的餐桌椅温润朴实,顶部悬落一盏长条灯,干净分明的线条勾勒一方明亮有序的用餐场域。 餐边柜以大面积无把手白色柜门,营造出静谧无华的画面,中部敞开的操作区置入层板架以及实用的移动插座,兼备日常使用的便利性。 No.4 厨房 厨房采用平行布局,两侧操作台沿墙面延伸,形成流畅的动线。充足的操作宽度配合白色橱柜,在提升功能性的同时,更以清爽的色调与简洁的造型,赋予空间通透敞亮的感受。 No.5 卧室 卧室的氛围调性与外部公区域保持一致,色彩内敛而稳重的床品、床头柜与斗柜,散发着安静好眠的柔和因子,让空间愈加松弛。 No.6 阳台 这方阳台用作休闲与观景,角落利用挂画、盆栽,布置出中国风的禅意小景。一把小椅、一方圆几,可随需求调整位置,总能找到最舒心的角度~















在线预约专享优惠
x
联系电话 :400-8800-618