当现代风的简约撞上轻奢风的精致,这个120㎡的单身空间相当不简单!
发布时间:2020-06-08

本案为世贸丽晶城120方现代轻奢风格设计,业主为一名单身男青年,目前家里常住1人,父母偶尔来住,考虑到将来的生活还是保留了三房的功能,期待能拥有一个简约时尚、素雅大方的家。
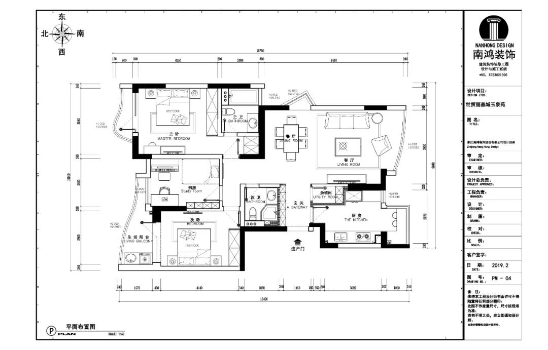
户 型 图

设计说明:增加了储物间;厨房功能放大;考虑到以后居住人口的增加,保留了原始房间。
玄 关 Foyer

入户正对餐厅,过道处设计中部与底部留空的玄关柜满足玄关和公共区域的收纳。过道的另一侧用KD板包覆,储物间做了隐形门处理。
客 厅 Living Room

客厅,高级灰的主调柔和而舒适,软装上的色彩比较丰富,搭在一起却丝毫不显突兀。


皮质、绒布、金属、石材、墙漆......不同的材质被融合在一个空间内,共同呈现出时尚的现代轻奢基调。


不同阶度的灰色传递出和谐统一的视觉体验,各色的抱枕和装饰画又丰富了空间层次,显得温暖而有活力。

客厅望向餐厅视角,开放的布局提升空间使用率。
餐 厅 Dining Room


餐厅,深色大理石台面餐桌搭配灰、蓝布艺餐椅,保证了舒适的用餐体验。
厨 房 Kitchen

厨房选用便于清洁的大尺寸深色地砖,操作台呈平行布局,一侧延伸至阳台设计成简易的吧台,拓展功能空间。
卧 室 Bedroom


主卧,在黑与蓝的深沉组合中点缀了活力的芥末黄,几何纹理的墙布装饰不作浮华堆砌,完美契合男生硬朗的气质。

次卧留作客房使用,父母来时可以住,所以整体布置简单,色彩是素净的暖灰,提供最基本的使用功能即可。
| 地址:世贸丽晶城
| 面积:120㎡
| 风格:现代轻奢
| 设计施工:浙江南鸿装饰
下一篇:客厅装修的五大常见误区
在线预约专享优惠
x
联系电话 :400-8800-618