横厅or竖厅——户型选择上你不可不知的点
发布时间:2020-06-15
在传统住宅中,进门大概是“入户玄关-厨房-餐厅-客厅”这样一字排开的顺序,但如今的户型设计,那是越做越新颖,相比一字排开的竖厅,横厅格局的出现也越来越频繁。

横厅与竖厅,这两者的区别大吗?我们在实际生活中该如何选择并进行后续设计呢?本期小鸿就带大家深入了解一下。

横厅与竖厅最大的区别点,就在于面宽和进深比例。
面宽是指房子(客厅)的主要采光面,与它垂直的面就是进深,这个大家应该都有所了解。
☞竖厅,也叫直厅,是指面宽小于进深的空间,一般竖厅的户型,客厅与餐厅会相互独立,中间隔着走廊过道。

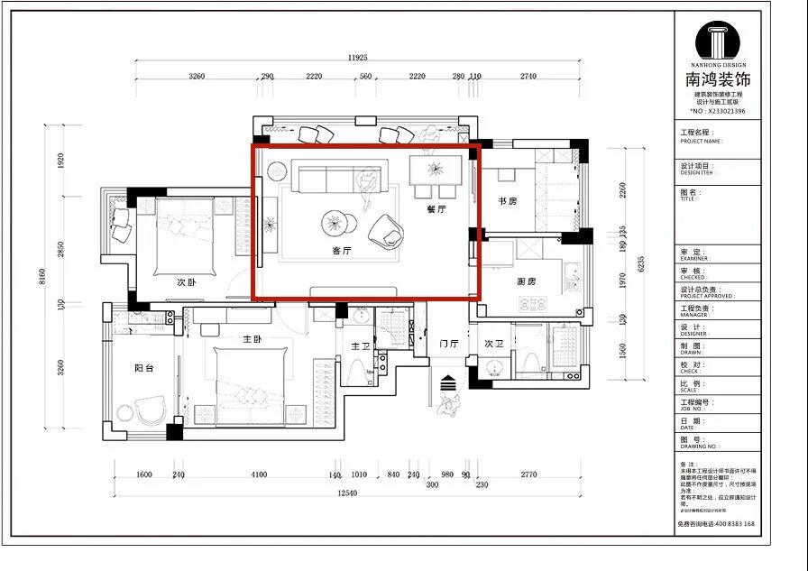
☞横厅,指客餐厅位于同一采光面上,且面宽大于进深的空间,一般横厅的户型,客餐厅连为一体,中间没有明显的分界线。


竖厅优点

①各个房间与客厅有走廊隔开,起居室与待客区有了明确的界限,动静线分明;
②各个空间的独立性更强,尤其是客餐厅,像这类户型,如果遇到南北通透的好格局,基本上后续就不用做太多改动,很省心;
③由于空间划分明显,客厅面积有限,沙发或电视柜基本能实现“背有靠山”的效果,满足了大多数人在家具摆放上的要求。
竖厅缺点
景观面小于进深,意味着做不到南北通透的话,势必会影响到另一面的采光;中部过道区域会占用空间,缩小实际使用面积。
如何改进?
竖厅本身最大不足之处在于采光,因此几块区域之间尽量用软隔断进行划分,保证空间的通透性。

如果觉得竖厅显小,可打通客厅与阳台,扩大客厅的使用面积,增加采光。


横厅优点

①横厅的采光和通风效果更为优秀;
②与竖厅相比,它减少了纯过道空间,提高了户型使用率;
③横厅在后期的装修设计中有更多的发挥余地。
横厅缺点
客厅与餐厅之间没有明显的界限,家具的摆放会受到局限;另外户型面积小,房间门大部分朝向客厅的话,就会出现噪音和隐私方面的问题。
如何改进?
横厅空间大,如果只做客餐厅的话,一般有三种布局方式:
电视靠墙
最常见的横厅布局,适用度最高,大户型看起来宽敞,小户型设计起来难度也不大。

▲沙发直接做客餐厅的隔断。

▲因为是用作隔断,所以要特别注意下沙发的尺寸,避免过大或过小。
如果感觉沙发不靠墙就不踏实的话,可以在沙发后加一个隔断:

▲半墙隔断

▲吧台隔断

▲收纳隔断

▲收纳+吧台隔断
沙发靠墙

▲这种情况就用电视背景墙做隔断。

▲背景墙的打造方式多种多样,表面用石材或木饰面装饰,看起来会更美观哦。
沙发靠窗
还有一种办法就是将沙发摆在靠窗的位置,然后把过道设计成电视墙,原本的电视墙就可以留作其他功能区。


总之,两种户型结构是各有各的优缺点,建议大家还是要从自身实际需求出发,后期再根据户型的不足来改进设计。
下一篇:实用的卫生间装修技巧
在线预约专享优惠
x
联系电话 :400-8800-618