意式简奢风180㎡户型,4室大改成2室,宽阔空间豪气尽显!
发布时间:2020-06-18

本案为春江花月180㎡意式简奢风格设计,业主是南鸿的一位老客户,打算将这套房子装修给目前单身的儿子住。
考虑到实际居住情况和未来的家庭结构规划,设计师大胆地将原户型的4室改为2居室,满足了业主对宽敞空间和大气风格的需求。
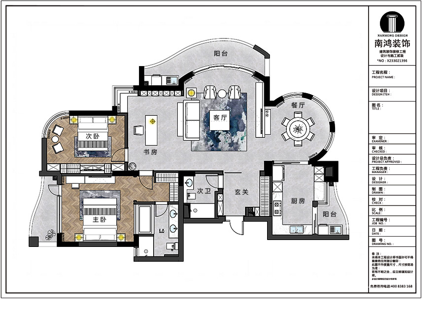
户 型 图

设计说明:
原户型的4房被改造为2房,书房直接与客厅结合,空间看起来更开敞;
储藏间并入玄关,玄关走道转变为宽敞的门厅,同时保留了足够的储物空间;
厨房与保姆房合并,面积扩大,空间功能更为完善。
玄 关 Foyer

玄关合并原有的储藏间,打造了一排功能柜,释放出足够的空间来营造大气的门厅效果,并加入了金属屏风作为隔断,在视觉上起到缓冲效果。
客 厅 Living Room

客厅为横厅布局,前后与餐厅和书房相通,电视背景墙做了半墙形式,当隔断的同时又不影响空间的通透感。

客厅通铺大理石瓷砖,黑白灰为主基调的空间中融入了墨绿色、钛金色和宝蓝色,低明度的撞色搭配展露出一种低调的奢华。


简约的软装布置协调出高级的质感,多元素材质又令空间更具多变性。灰蓝地毯选用得恰到好处,中和了两侧明亮的白和深沉的蓝。

客厅望向书房视角,无主灯设计契合全室的简洁调性。
书 房 Study


中性灰黑色搭建的书房空间,以干练有型的线条表现出酷雅的商务气质。
餐 厅 Dining Room


餐厅呈圆弧形,大理石台面餐桌搭配暖灰色皮质餐椅,结合窗外的绿意美景,用餐的体验将更为美妙舒适。
厨 房 Kitchen

厨房,大理石瓷砖一路通铺至此,纯白橱柜搭配黑色五金形成鲜明的视觉对比,电器柜、食品柜等多种功能柜的配置,令厨房功能更加完备。
卧 室 Bedroom


主卧铺设木地板,背景墙选用艺术墙布装饰,统一的大地色使空间拥有了适宜睡眠的静谧气氛。


主卧在进门处打造了L形衣帽间,充分利用空间。主卫与睡眠区以通透玻璃相隔,进一步延伸视觉。


次卧陈设简单,灰白与木色结合,背景墙作留白处理,一体式柜子满足屋子的收纳需求。
卫 生 间 Toilet

卫生间干净明亮,台盆柜作悬空设计更显轻盈,L形的洗手台面方便摆放洗漱物品。
| 地址:春江花月芳甸苑
| 面积:180㎡
| 风格:意式简奢
| 设计施工:浙江南鸿装饰
上一篇:厨房装修最重要的四个细节
在线预约专享优惠
x
联系电话 :400-8800-618