国悦府410㎡新中式 | 国风古典撞上现代元素,呈现一派低调奢华
发布时间:2020-07-05

“留白”是中国艺术形式美中最重要的构成要素,而新中式是以“空白”为载体进而渲染出更美的意境
本案为国悦府410㎡新中式设计,便将这种精神内核延伸到“至精归于至简”的美学意境,并融合多元的设计元素,来展现其返朴归真、顺应自然的特点。
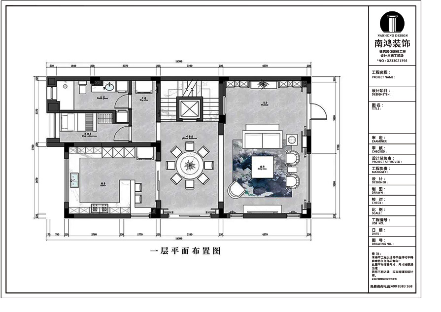
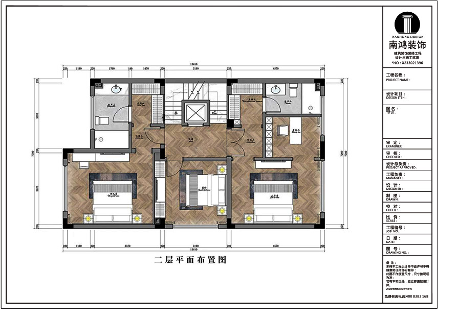
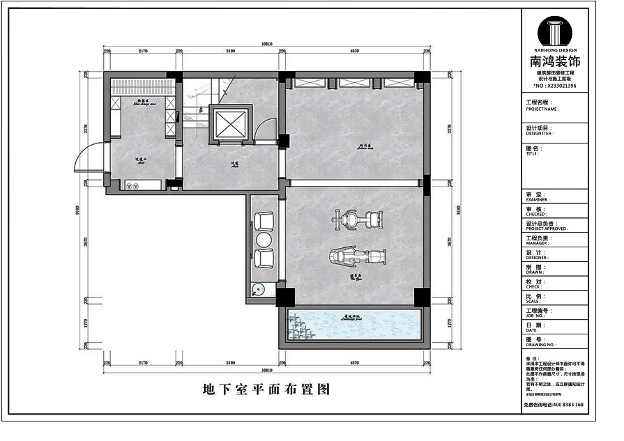
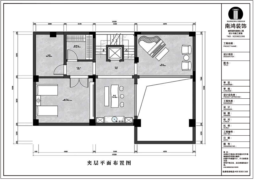
户 型 图







入户门厅端景设置一幅圆形中式画,蝶恋花的意象将东方意境的清幽雅致传神地表达出来,唤醒人们内心深处的依恋与回归。




一层的大客厅包含接待、聚会的功能,素墨的色彩与纹理相协,现代形制中又不乏绵绵古韵,设计语言上以直线条为主,块面的分割予人通透干练的感受。


客厅的风格上提取了中式文化的精髓,再注入现代生活的气息,通过空间的营造,传递出一种低调奢华,简约贵气的美感。


餐厅处的格调、秩序与客厅互为映衬、各自延伸,以营造统一性的美,餐桌呈圆弧形,一派包容与充满凝聚力的气息自此而生。



厨房,白色吊柜搭配木质地柜,细致庄重,现代化的内嵌厨电打造出设备齐全的料理空间,靠门一侧还设计了吧台。


主卧在三层,背景以一副山水画徐徐展开,搭配传统的中式床与同色系地毯,碰撞出富有人文气息兼具现代品质感的诗意禅韵。


主卧是包含书房与衣帽间的套间结构,书房处,书籍藏物整齐列架,倚墙而立,足以令人在这隅沉浸式的精神之地中潜心工作学习。


两间次卧有别于主卧的古色古香,在设计上更偏向西方化的品质追求,孔雀蓝的低调优雅与绿瓷色的清新雅致各有所长,赋予两处房间独立的个性气质。


位于夹层的茶室空间,天然石材、木材的纹理呈现出的质感美,使空间流泻出沉静淡然的气息。


位于地下室的健身区设计,垂直挑高的专属独立空间,成为屋主日常锻炼身体的最佳休闲场所。
| 地址:国悦府
| 面积:410㎡
| 风格:新中式
| 设计施工:浙江南鸿装饰
在线预约专享优惠
x
联系电话 :400-8800-618