江南一品 | 陪伴,是最长情的告白
发布时间:2020-07-24
《告·白》
如果说爱情的告白,
是一场充满惊喜的仪式,
那么生活的告白,
则需要长情的陪伴和些许情调的点缀。

// 项目信息 //
地址 / 江南一品
户型 / 四室两厅
面积 / 180㎡
风格 / 现代简约
设计施工 / 浙江南鸿装饰
本案的男女业主喜欢现代简约风,故设计师选择了黑白灰来书写长情的基调,又因是婚房,所以用些许彩色的点缀来营造生活的小情调。
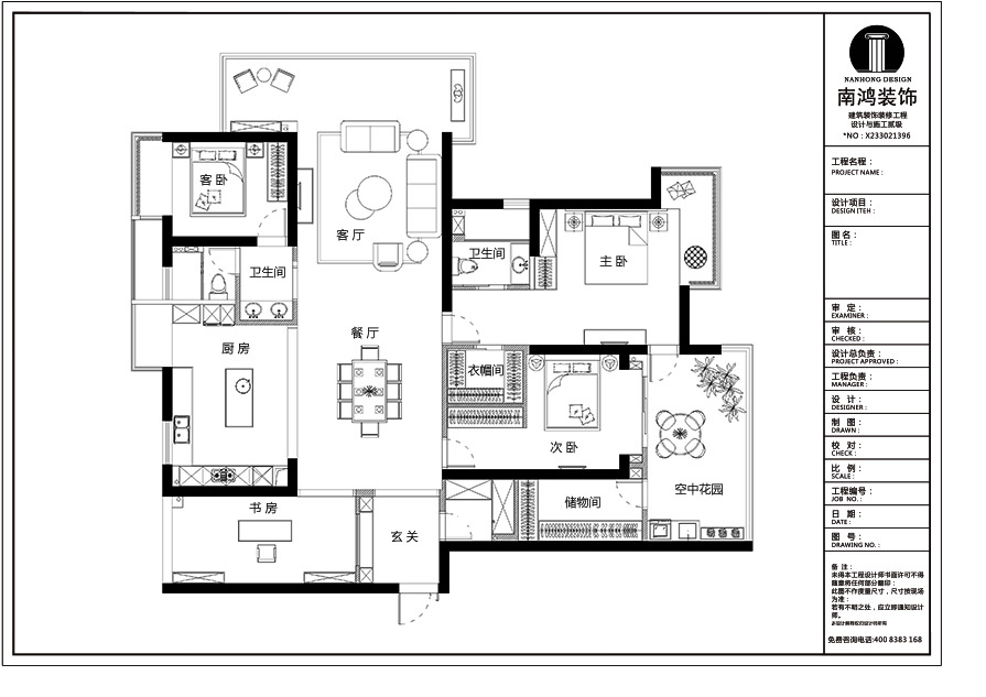
户 型 图

客 厅 Living Room

客厅的浅灰色调显得干净又敞亮,电视背景墙选用高级的鱼肚白岩板,与整体色调和谐呼应。


纯色灰调的皮质沙发展现一种极致的纯粹感,沙发前的圆形组合茶几与上方的吊灯形成呼应,于细节处显巧思。
客厅两侧的木饰面,与全屋的木门,共同为空间增添了素雅柔和的氛围。
餐 厅 Dining Room

客餐之间没有明显的分界,用餐空间更灵活。

餐桌用了深色的岩板,餐椅的高饱和橙色则为空间注入了活力因子,而天花的吊灯,同样是圆环形组合,换了一种组合方式与倾斜角度,却又是别样的美。
厨 房 Kitchen

厨房做了敞开式,灰系橱柜组合白色台面在视觉上便令人倍感舒适,中岛的设置更让空间多了现代感和互动性,让烹饪的愉悦,一览无余。
卧 室 Bedroom

主卧强调简洁的线条感和温馨的视觉感受,木地板搭配棕色木纹背景,舒适的双人床让每一次的休憩都成为不可多得的幸福。

为未来小宝贝准备的儿童房,布置简单,更多是保留了一份期待。
书 房 Study

书房,黑色的书桌椅线条流畅,简约的造型弥漫出沉静的气息,书柜则用了白色与橙色的跳跃组合,好似为每日的工作、学习赋予了更多灵感因素。
卫 生 间 Toilet

双台盆设计提升日常的使用效率,黑与白形成了完美的视觉平衡。

一体式台盆深度恰好,又方便清洁,仿佛悬浮的圆镜为空间增添了一层科技性与未来感。
向往的生活,其实并不需要过多物质的堆砌,所需的,仅仅是最简单、纯粹的陪伴,如此而已。
在线预约专享优惠
x
联系电话 :400-8800-618