十一月设计师大会 | 这波内容丰富到爆表!
发布时间:2020-11-12
“天青色等烟雨,我在等快递...”
又是一年一度的双十一
小伙伴们都剁手几轮了呢?

仿佛是为了迎接今天这个喜庆的日子,
昨日的11月设计师大会,
内容真的 超 级 丰 富 !

咳咳,话不多说,
赶紧一睹为快!

01
设计师PK赛
★MVP风采
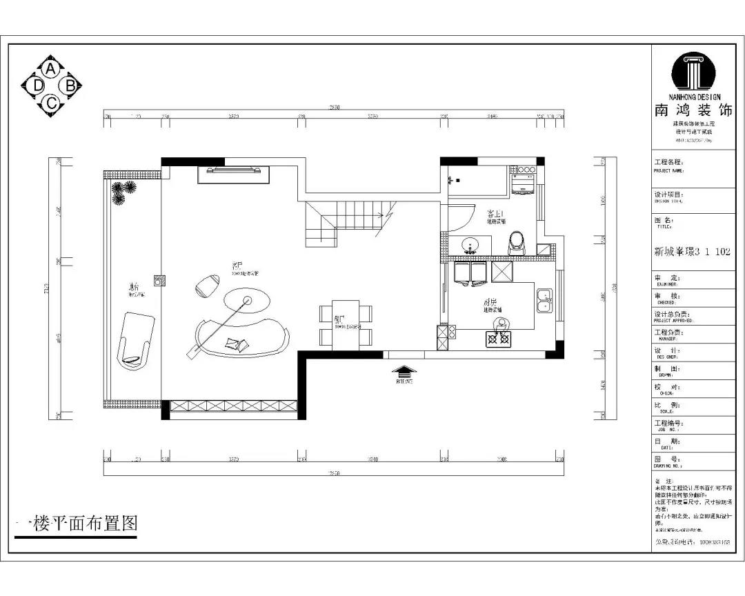
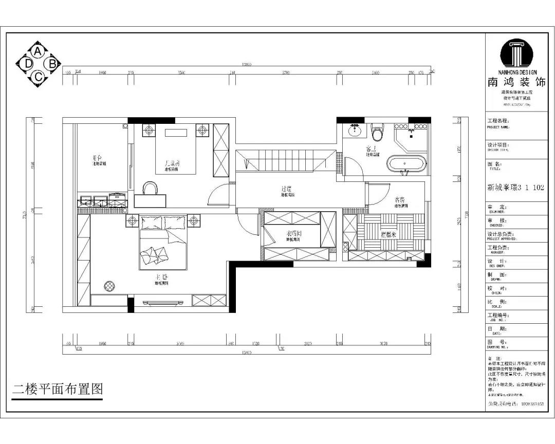
本次大会的MVP作品,是来自我们设计二部胡雅芳老师的现代风格案例——新城峯璟。

- 户型图 -


本案的户型南北通透,一楼所有房间均打通,做了大客厅、餐厅和地台休闲区,二楼则是卧室、客房与储物区,上下动静分离,落地效果十分有大宅的感觉。

♦♦其他精彩作品
设计六部——万泰风华新语

本案是一套小户型的北欧风格设计,以浅灰为主色调,清爽干净。设计师与客户十分投缘,所以整个施工过程相当顺利,工期约为5个月。
- 户型图 -


设计解析:敲除设备阳台;扩大客厅视野;卫生间做了干湿分离;主卧入口改动
- 实景图 -

城东分部——唐家景府

本案为124方婚房设计,客户需求明确,如开放式厨房和书房、三式分离卫生间等,设计师也在本案中运用了诸多包括拱形,弧形,圆角,无主灯在内的流行元素,让这个新家颇为时尚美观。
- 实景图 -

科技城分部——天城府

本案业主为一名单身男青年,在居室的主色调上偏爱低饱和色系,需要有适当的储物空间,室内动线流畅,设计师结合他的需求定下了最终方案。
- 实景图 -


萧山分部——舟山钱府

本案为1070方的全案项目设计,由于住宅面积非常庞大,无论是前期量房,中期施工,还是后期软装进场,都是对设计师和全体项目施工人员的巨大考验,而最终的落地效果也得到了客户大大的肯定,为南鸿小伙伴点赞!
- 户型图 -

- 实景图 -

▲西边套

▲中间套

▲东边套
设计三部——钱江府

本案为90方现代风格三室两厅设计,选用的是公司1199套餐,主色调偏灰,线条分明,简洁又耐看。
- 户型图 -

大宅部——设计师的家

本次大宅部的王佑飞老师给大家分享到的是他自己家的设计案例,风格为偏小众的法式复古风,无论是色彩搭配还是家具选用,都生动透露出了两个字:细致!一起来欣赏一波美图吧~



02
产品知识学习
本次会议还邀请了南鸿的部分材料合作商来为设计师们讲解相关产品知识,方便设计师日后能直观运用到实际项目中去。

这也是设计师大会的新增环节,目的正是帮助设计师们进一步提升自身的知识面与综合实力。
03
颁奖时刻

▲李总为业绩突出与上月优胜的设计师颁奖
会议的结尾,李总讲话表示,如今消费者对家居环保的要求越来越高,设计师和项目经理除了要关注“装修环保”之外,更应重视“入住环保”,让消费者更安心、放心。

祝董也就行业趋势和公司发展发表了重要讲话。他表示,存量房时代,装企之间的竞争拼的就是实力,南鸿必须牢牢抓住 “更环保的高品质装修”这一定位,以客户需求为第一导向,设计师们也要不断拓宽自身知识的广度与深度,才能用更强的说服力签下更多的客单量。

祝董同时对第三季度的业绩做了肯定与表扬,希望公司在第四季度能再创佳绩。
在线预约专享优惠
x
联系电话 :400-8800-618