十二月设计师大会 | 精彩的收官PK赛!
发布时间:2020-12-10
不平凡的2020年,
即将走向结尾。
小鸿对着日历瞅了半天,
这不元旦假期要到了嘛~

在那之前,
大家双十二都想好买啥了吗?
咱们南鸿可是准备了年度超级盛典,
年前定装修的朋友,
千万不可错过啦!

咳咳,言归正传,
昨日下午召开了12月设计师大会,
也算是本年度的收官PK赛。
“精彩”两个字,
小鸿都说倦了

01
设计师PK赛
★MVP风采
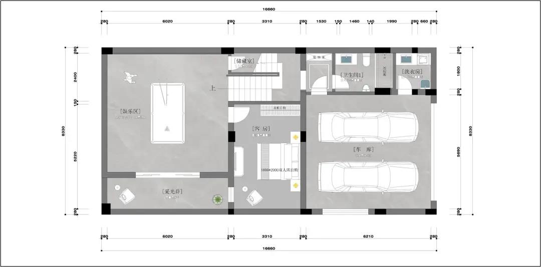
本次大会MVP,是设计一部孟炜江老师带来的一套非常经典的排屋作品——大华西溪风情。

- 户型图 -




虽然有着540方的超大空间,但设计师依然谨慎地衡量着每一个家具、每一个饰品的尺寸大小和摆放位置,最后呈现的效果,无论是家具还是配饰,均以其优雅的姿态、平和而富有内涵的气韵,描绘出屋主乐观平实的生活理念。
一套十分大气的美式轻奢案例作品,大家可以点击下图了解详情哦▼

♦♦其他精彩作品
设计四部——玖玖国际财富中心

房屋位于余杭区,是一套面积90方左右的复式公寓,业主为一家三口,风格定位在现代简约。

▲SU模型展示
二楼是女儿的开放式卧室空间,楼梯本身做了悬浮设计,效果超级美观!
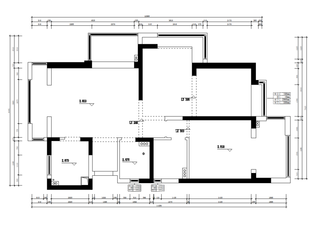
滨江分部——江南学府

本案户型为104方,三房两卫的方正结构,无暗卫暗室,业主需求新颖的设计与当下比较流行的智能家居。
- 户型图 -

- 实景图 -



▲暖棕色的家居,沉稳中释放着韵味;最精简的家具,让设计回归生活本真
临平分部——胡姬花园

胡姬花园的业主为一家四口,希望新家的功能可以尽可能完善。设计师在公共区域沿墙设置收纳柜,满足了全家人的收纳需求,并利用相同元素延伸的设计,保证了空间的开阔感。
- 户型图 -

- 实景图 -

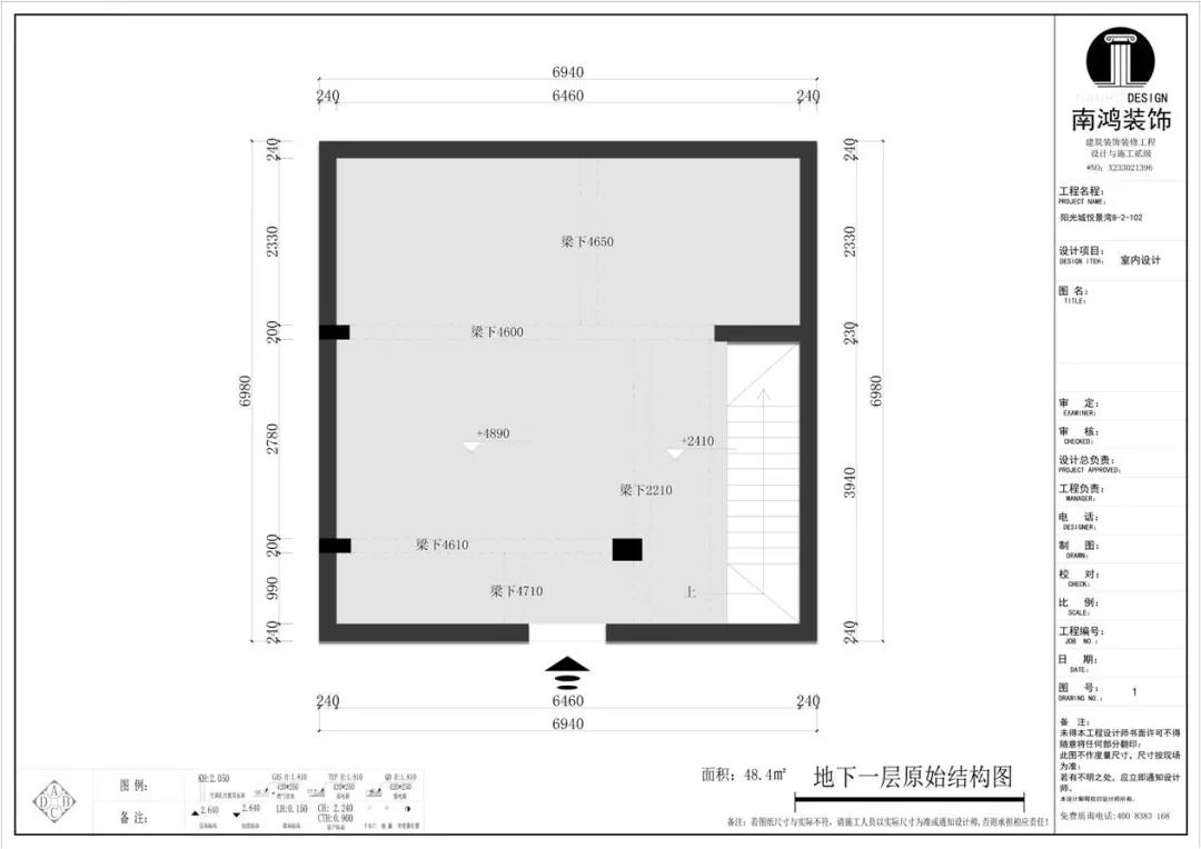
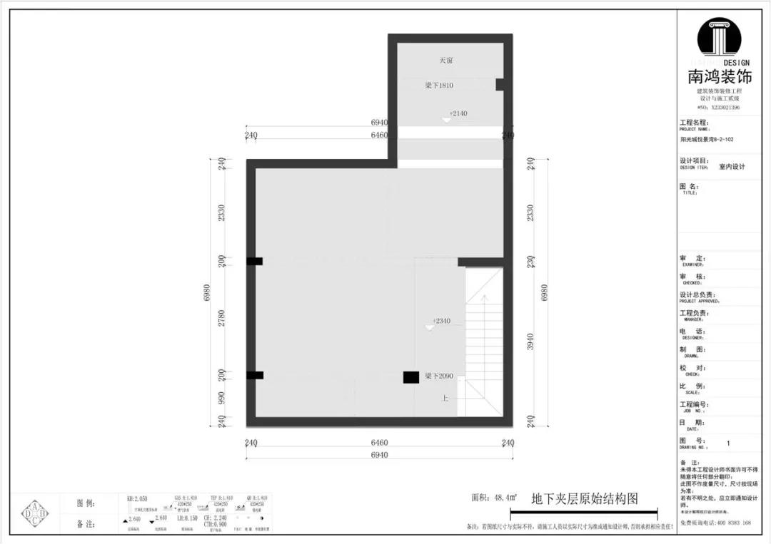
富阳分部——阳光城

本案为局改项目,业主打算装修自家的地下室,由于本人十分看重施工品质,所以自然而然地找到了在工程质量上一向有口皆碑的南鸿。
- 户型图 -


- 施工图 -

城西分部——钱江御府

本案为170方现代风格的作品,业主是一对事业有成的夫妇,家里还有一双儿女和两个老人,希望设计师能打造出一个简约低调、大气美观的生活空间。
戳戳下图回顾一下吧!

02
产品知识学习

会议上,定制部的祝总还专程为在座的设计师们讲解了我们南鸿富拉尼定制板材的相关知识,其中重点提到了目前的主流产品爱格板,以帮助设计师们能更好地掌握南鸿的全案产品体系。
03
颁奖时刻

▲李总为业绩突出与上月优胜的设计师颁奖
会议的结尾,李总发表讲话,重点阐述了设计交付与业绩提升的问题,这二者均离不开设计师对各类产品深度的了解与把控。

李总强调,设计师应不断拓宽自己的产品知识,积极参与并把控产品选配,提供给客户更优质的到店体验,方能在业绩上取得一个新的突破。
在线预约专享优惠
x
联系电话 :400-8800-618