南鸿装饰6月全体设计师会议精彩来袭!
发布时间:2021-06-13
“端午临中夏,时清日复长。”马上又是一年一度的端午节了,小鸿在这里先预祝大家端午安康,万事顺心,最重要的是,小长假玩的开心!

接下来,一起来看看南鸿装饰6月全体设计师会议上的精彩内容吧~

✪ MVP作品
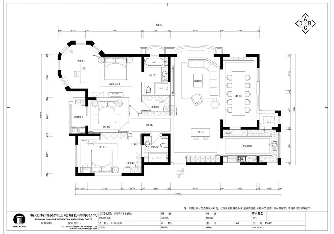
城西分部王金 / 华瑞晴庐

本次PK赛的最佳作品,是来自我们城西分部王金老师的华瑞晴庐,王老师还为他的作品起了一个非常贴切的名字——“红与黑”。
户型图一览▼


◁平面设计图
华瑞晴庐本身是200方的大平层户型,但厨、卫、餐、卧房都偏小,因此设计师将空间进行整合规划,尽量放大客餐厨公区域面积,满足客户的日常交际需求。
现场施工▼

实景欣赏▼





色彩上主要依照男主人的喜好,选择了深色的石材与木饰面,点缀上深红色的软装元素,整体搭配不会太过沉闷,再结合柔和的灯光用以打造空间氛围感,完美诠释“红与黑”主题!
设计一部徐姮 / 上河宸章

徐姮老师的上河宸章是套200方新中式风格的花园洋房户型。在这所大居室中,一家人其乐融融,闲有可栖,畅享现代艺术的气质和氛围,领略古老而神秘的传统文明,这大概就是新中式的独特魅力吧。
实景欣赏▼



△客厅沙发背景墙

△卧室


△古韵悠扬
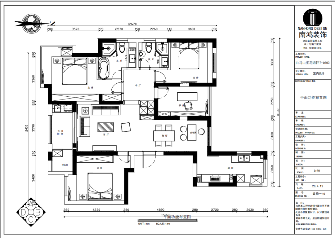
设计四部王小芬 / 白马山庄

白马山庄是由设计四部的王小芬老师带来的一套现代轻奢风格的作品,在本次会议上受到了诸多评委的好评。
户型图一览▼

实景欣赏▼



室内色彩以黑白灰色调为主,冷色调给人安静的感觉,适合屋主一个人静下心来看书、品茶,同时也放大了空间。装饰上采用的大理石、金属嵌条、银镜等元素,也有利于营造全屋的轻奢氛围。
滨江分部王冬萍 / 雁归里

远洋雁归里是我们王冬萍老师的一套现代轻奢风格的别墅作品。轻奢风是一种格外优雅的生活基调,也是居者面对喧嚣世界时宁静从容生活态度的一种外现,高贵又有质感。
效果图一览▼




△设计师前期所做的一些效果图分享,一起期待最后的落地成品吧!
临平分部朱叶琦 / 雍熙山庄

最后一套作品是由我们朱叶琦老师带来的现代风格案例雍熙山庄。现代风格简约时尚,美观大气,注重空间的布局与使用功能的结合,不刻意突出装饰和外表,经济又实惠,是当下最受欢迎的风格之一哦。
效果图一览▼


会议上,度爱度家公司的工作人员受邀来到现场为我们做了软装产品的知识分享。随后,产品部、软装部的小伙伴也为在座的设计师们悉心补充讲解了南鸿现有产品体系的相关知识,帮助设计师们更好地了解到咱们南鸿的产品优势。




△陈总为各“设计之星”颁奖
会议的结尾,李总发表讲话,着重提到在全案/整包项目,设计师一定是在整个过程中起主导作用,而设计又与产品息息相关,所以设计师们要不断拓宽自己的知识边界,将更多优秀产品融入到自己的设计方案中,把品质交付落到实处。

在线预约专享优惠
x
联系电话 :400-8800-618