南鸿装饰8月全体设计师会议精彩概览
发布时间:2021-08-14
12日下午,南鸿装饰8月全体设计师会议于杭州瑞莱克斯大酒店顺利召开。
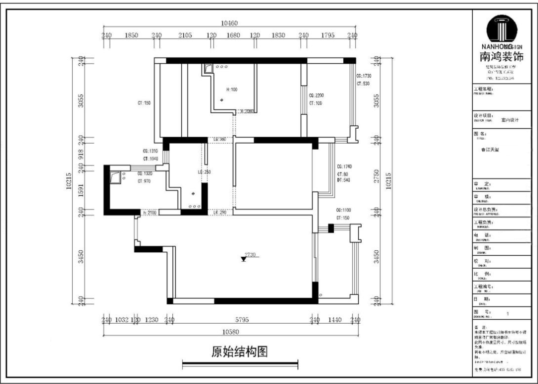
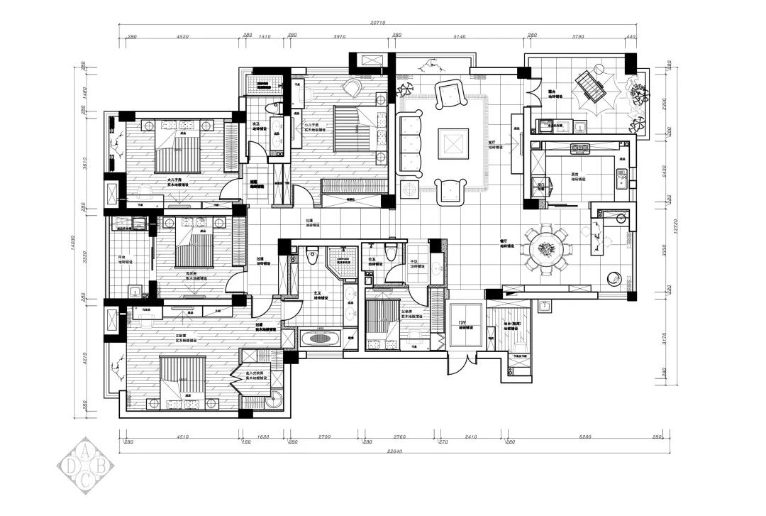
这次到会的小伙伴们都穿上了公司最新定制的统一“小橘衫”,bingbing闪亮登场!经小鸿亲身认证,穿起来真的hin舒服~ 本次会议上,七位设计师带来了他们的作品分享,还有两大合作品牌商到场,精彩多多! ♕ MVP作品 设计一部庄建荣 / 龙湖春江天玺 本次PK赛最佳作品,是来自设计一部庄老师的龙湖天玺。89㎡偏复古文艺气质的出色小户型案例,全屋以暖色调烘托温馨氛围,局部使用深色跳色,软装家具、饰品也全部遵循配色原理,空间内混搭元素虽多,但丝毫不显杂乱。 户型图一览▼ 实景欣赏▼ 城西分部方祥荣 / 紫金西苑 本案为130方现代简约风格的作品,业主夫妻二人均为浙大老师,属于都市高知群体,对生活品质有着高要求。现代简约风格注重实用,强调功能,家具线条流畅,色彩造型时尚,自然成为了他们的心中首选。 户型图一览▼ 现场施工▼ 实景欣赏▼ 设计四部金罗丹 / 五幸家园 五幸家园是金老师之前经手的一套回迁房案例,三代同堂,前期与客户交流方案的时候遇到了一些分歧,最终金老师通过耐心沟通获得了他们的认可与信任,让作品得到了圆满的呈现。 实景欣赏▼ 富阳分部陈珊珊 / 如意春江 本案位于富阳一处风景秀丽的大型居住区,地理环境优越。在案例思路上,设计师希望以低调的灰色硬质架构搭配明亮的白色家具,再在软装上辅以米色系等跳色点缀,让空间由内而外散发出动人的柔软温度。 户型分析▼ ▲书房设计在负一层的采光井区域,这是屋主对地下室格局设计的唯一要求;棋牌室与书房打通,中设茶水室。 ▲超大的开放式餐厨区域,满足屋主对通透格局的需求;楼梯改造是本案重点,原有笨重狭小的楼梯被打掉,取而代之是以悬空和异形叠加的方式,让楼梯成为入户的亮点所在。 ▲2楼面积最大视野最好的空间作为孩子的卧室;长辈房安排在儿童房隔壁,方便照顾孩子的成长。 效果图一览▼ 临平分部曹云芳 / 水景城 曹老师分享了一套美式轻奢风格案例,明亮的色彩搭配让人印象深刻。充满愉悦感的蓝色,被调制成五十度的低度色,用这样的色彩来装饰,容易给人以稳重、大气又积极向上的感觉。 户型图一览▼ 实景欣赏▼ 精装部施文卓 / 萧山国际公馆 本案是新中式风格的作品,主题定在简约朴素,在实用的基础上加入一些底蕴深厚的新中式元素,力图营造一个雅致的东方美学氛围。 户型图一览▼ 效果图赏析▼ ▲典雅的客厅空间,色彩和谐,原木和硬包的运用,释放出柔和气息。 ▲艺术硬包沙发背景墙,山水的寓意比较美好。两侧加不锈钢条,整个背景看上去有层次,有时尚感。 ▲餐厅的设计时尚大气,餐边柜象牙白的柜门提亮了整个空间。 ▲主卧用色沉稳,硬包背景组合木饰面,彰显温润视感。 滨江分部蒋威 / 浙商大厦办公区 本案为一套工装案例,项目整体预算充足,格局宽敞,用材考究,地面通铺大理石,上方辅以多层次灯光渲染,上下两层气派高级的办公区域就此诞生! 实景赏析▼ 本次会议邀请到了南鸿两大合作品牌商汉斯格雅与贝朗卫浴的吴总、陆总到现场为大家做了各自的品牌介绍与相关产品知识,软装部的同事则带来了最新的展厅动向。 定制部的小伙伴还为大家细心解读了西子铭苑这套优秀作品的诞生过程。这是一套比较完整的全屋定制,有整体橱柜,浴室柜,全屋定制柜,房门,护墙还有硬包等,设计师们也借此对南鸿定制有了更深刻的认识。 △祝董为各业绩优秀的设计师颁奖 会议的结尾,李总讲话表示,南鸿作为深受广大消费者认可和信赖的家装领军企业,口碑是立身的基础。在今后的工作中要更加精准地定位客户画像,找准客户需求并及时解决,把客户满意度牢牢摆在第一位。 祝董则再次强调了设计师的专业度问题,客户对南鸿的信任基础,不仅仅建立在工程质量之上,也在方案设计、产品采购、服务沟通等方方面面。









































在线预约专享优惠
x
联系电话 :400-8800-618