南鸿装饰10月全体设计师会议精彩概览
发布时间:2021-10-18
10月14日下午,南鸿装饰10月全体设计师会议在杭州瑞莱克斯大酒店举行。
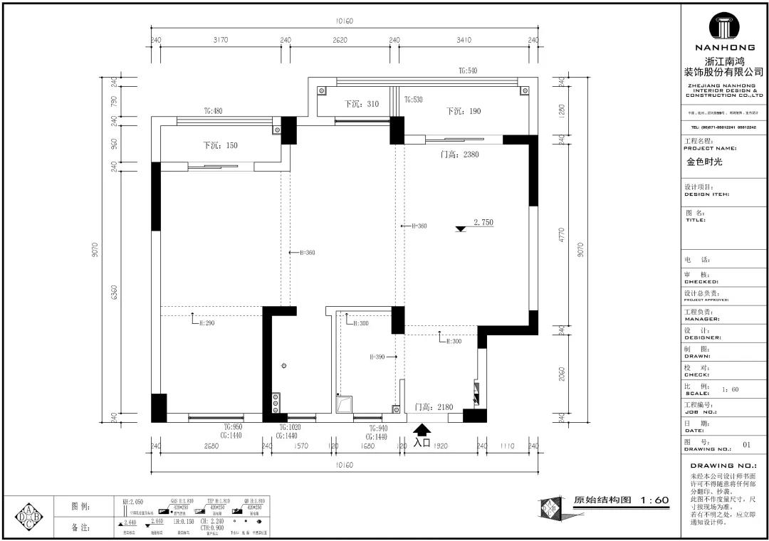
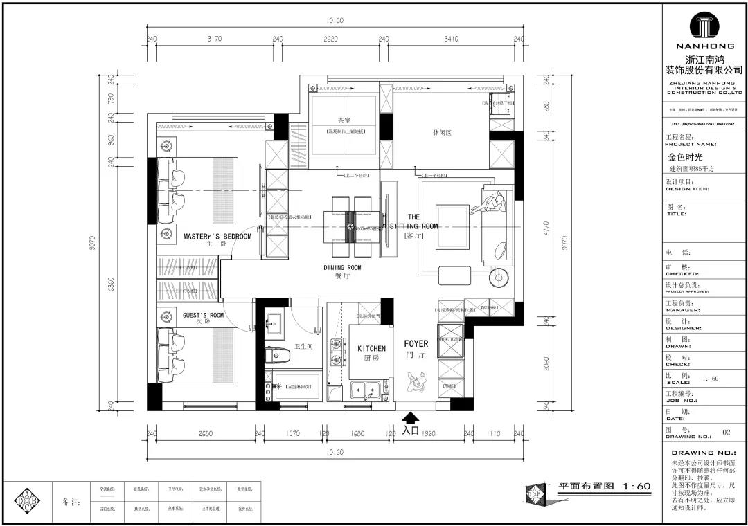
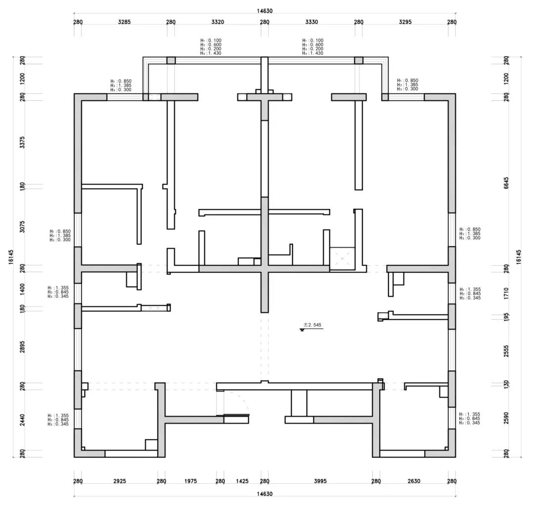
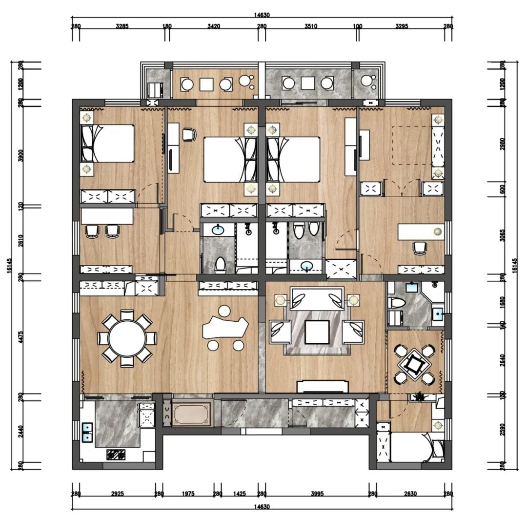
此次会议和以往稍有不同,除了有七位设计师的案例分享,还专业的风水知识讲授,整场会议,干货满满又生动有趣,快来了解一下。 设计师PK赛 1 MVP作品 设计一部/金色时光 此次设计师会议得分最高的作品是来自设计一部的金色时光案例。89㎡两室两厅的居室,业主是一位单身男性。在布局上设计师将公共区域打开,并植入了比较多的镜面元素,尽量改善室内采光;增加了大量收纳空间,保证室内的明亮简洁;设计了地台,满足了业主对休闲感的要求。 户型图一览▼ 实景欣赏▼ 这套作品业主非常满意,设计师在设计时也十分用心,在布局上不仅扩展了空间,也为将来的户型改动提供了更多的便利。戳上图了解更多案例信息哟~ 临平分部/远洋湖映宸章 本案的风格选择了现代风格,业主是一位单身女性小年轻,比较喜欢新潮、新鲜的事物,追求时尚感,考虑到家里有长辈居住,在储物方面要求要多一点,另外业主对品牌的要求比较高。 户型图一览▼ ▲原始户型图 ▲平面设计图 效果图一览▼ 实景欣赏▼ 滨江分部/招商武林郡 本案是一套住宅公寓,三代同堂,业主希望有一套现代感的居所,家庭要有氛围感,书房要开放式;整体要比较清爽,并且对环保比较看重。设计师对此从“环保”、“人文”、“艺术”三个方向进行设计,力求打造一个温馨清新的家居环境。 户型图一览▼ ▲原始户型图 ▲平面设计图 效果图一览▼ 现场施工▼ 精装部/都会森林 这个作品是一套143方精装修的案例。设计师唐老师是根据与业主的深入沟通,帮助业主确定了自己所要的风格。并在精装修的设计流程上唐老师有自己的理解,通过对南鸿自家软装的了解,根据现有软装制定设计方案,为精装修设计方向提供了一条新的思路。 户型图一览▼ ▲原始户型图 ▲平面设计图 效果图一览▼ 精装修的重点在于软装,唐老师从局改入手打造户型,在成品家具、定制柜、背景墙、灯具、布艺等方面和谐搭配,统一整体步调,体现精致装修风格。 富阳分部/山水国际 何老师带来的作品是一套158㎡大平层户型案例,风格是现代简约。何老师为此项目设计了三套方案。业主有一儿一女,比较看重家庭,何老师三套方案的设计方向也是讲究温馨和美,塑造舒服的家庭氛围。 户型图一览▼ ▲原始户型图























▲平面设计图
实景欣赏▼

设计四部/水月苑

这一套作品被称之为“风雅·轻奢”。业主是一位非常热爱生活的小姐姐,有着自己独特的审美爱好,房屋作为婚房装修,后期父母偶尔来居住。保留三房功能,原户型公共区域空间拥挤,想要空间敞亮开阔,色彩明亮。
户型图一览▼

▲一层原始户型图

▲二层原始户型图

▲一层平面设计图

▲二层平面设计图
实景欣赏▼

城西分部/平海公寓

这是一套经典美式风格的案例。214方五室三厅的面积让美式的奢华感得到了尽情的释放。王老师从软装角度出发,运用木质家具和有艺术感的摆饰,打造出一个精致的居家环境。
户型图一览▼

▲原始户型图

▲平面设计图
实景欣赏▼

荣誉颁奖

▲陈总为业绩优秀的设计师颁奖
分享环节结束,李总上台发言。他表示每次设计师大会都是一次难得的经验交流和个人成长机会,大家都能从中获益。同时李总也强调了设计师们要提高意识,深入认识精装和软装的差别,以应对当下行业的变化和客户日益增长的个性化需求。

陈总则认为,设计师们需要保持不断输入的状态,在精装房越来越成为主流的当下,用知识来武装和提升自己,并且不断优化与客户之间的沟通方式,优化装修流程,形成南鸿标准。

会议最后,祝董上台发表了总结讲话。他强调,设计师在提升美商的同时,也需要不断提升自身情商,在与客户的沟通交流中更好的践行“做装修、交朋友”的南鸿核心理念。

在线预约专享优惠
x
联系电话 :400-8800-618