南鸿装饰11月全体设计师会议顺利召开
发布时间:2021-11-12

11月11日,南鸿装饰本月全体设计师会议如期召开。
本次会议不光有多位设计师的案例欣赏,还有来自产品部、软装部、工程部小伙伴们的硬核知识分享,超多干货,绝对精彩!
♕ MVP作品
全案组陈传军 / 春江花月

家,包裹着我们对个人生活环境最私密、最浪漫的想象。当艺术融入空间,设计借用色彩和材质搭配,为我们搭建起生活的桥梁,展开了现代生活画卷中诗意栖居的无限可能。
来自全案组陈传军老师的这套春江花月案例就是这样,意式简奢主义,家具的造型简单却设计感十足,整个空间简约自然又富于精致美感,中性的色调时尚而不浮躁,是一眼可鉴的品质家居。
▲点击展开案例详情!
城东分部刘枝 / 康城一品

轻奢现代美式,相对于单一美式来说,更加年轻时尚,又不乏沉稳大气之感,可以说是一种能让上下两代人都十分喜欢的家居风格。
本案是170㎡三室两厅户型,宽敞的公区域更有了大气风范,置身在这样一个格调高雅的空间中,你就能感受到一种奢华而精致的居住氛围感。
▲点击展开案例详情!
科技城分部周娟 / 中南樾府

本案的业主是位单身贵族,妈妈偶尔来小住,平时经常出差。在住房需求上,风水是重点考量,其次要有书房,客厅空间要足够大气,整体能呈现轻松自在的氛围感。
效果图一览▼

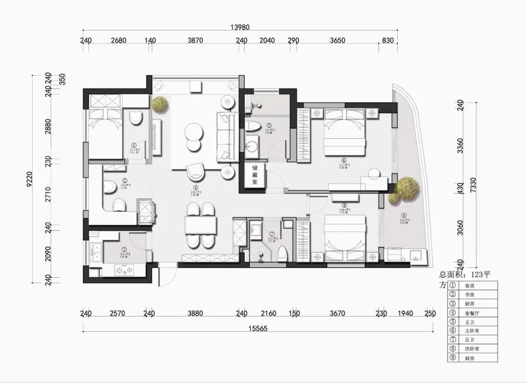
萧山分部朱樟毅 / 城市之光

本案为123㎡复式户型,男主人是名程序员,又喜爱打电竞,我们为他在一楼设计了开放式书房,而女主人是名中学老师,非常注重日常生活的仪式感,我们通过弧形元素的使用及各种材质的混搭,来点缀出空间的情调。
户型图一览▼

效果图一览▼

设计二部赵航杰 / 凯文杭庄

本案同样是现代美式风格的案例,地面三层加底下两层的别墅大宅,给了设计师很大的发挥空间。现代美式房屋的色彩搭配往往会选择比较明朗恬静的效果,整体让人看起来也有温和柔美的感觉,再搭配清爽的线条,总体的格调足够舒适大方。
实景欣赏▼

设计六部王逸鸿 / 九龙仓碧玺

本案是三室两厅的户型,客餐厅空间大,厨房面积小且有一个暗卫,设计师针对户型上的缺陷进行了对应调整。
户型分析▼

▲扩大厨房空间,增加餐边柜功能,客餐厅区域分割更明显,并去除一个暗卫,增加储藏室功能
实景欣赏▼


产品部:产品更新信息与一些常见问题向设计师们提醒,并详细讲解了木作流程和操作规范。

软装部:讲解了软装的相关流程节点,及硬装不同阶段介入软装的机会点等。

工程部:重点介绍了老房、地下室和露台装修的各项施工工艺节点。

△祝董为各业绩优秀的设计师颁奖
会议的结尾,李总讲话表示,南鸿多年来脱离价格战,是通过做品牌、做品质、做放心工程来赢得市场份额,设计师们需要不断精进自己的设计创新能力和落地交付的专业能力,在前期就快速与客户建立信任,帮助客户实现真正的“无忧装修”。

祝董最后做总结发言,指出在原材料全面涨价的大环境下,南鸿人应扎牢根基,继续为客户朋友输送高性价比的产品与服务。
作为中国家装行业两项全国性标准规范的参编单位和首批实施单位,南鸿有着强大的供应链生态体系和严格的品质监管流程,即使面对再艰难的挑战,南鸿的明天也只会越来越好!

在线预约专享优惠
x
联系电话 :400-8800-618