新作首发 | 让时光驻足,静听岁月清歌
发布时间:2022-06-13
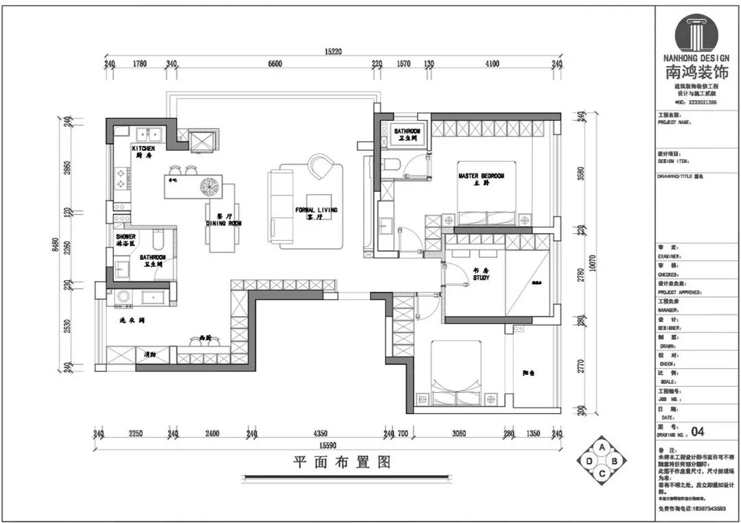
项目信息 / 地址:时代滨江悦 城市:中国 杭州 户型:三室两厅 面积:135㎡ 风格:极简/轻侘寂 设计施工:浙江南鸿装饰 且听风吟 / 避不开车水马龙的日子 便于此心间修篱 本案为一家三口居住,女儿目前上高中,只在休息日回来。 女业主喜爱现代极简,希望空间是干净、沉稳。平常使用的家电比较多,所以需要提前规划好位置。另外业主很好客,经常会有朋友来家里聚餐,客餐厅公区域必须宽敞大气。 色系上以奶白、原木色和水泥色为主,自然的张力与艺术美学的意趣很好结合,干净清明的内里环境加上宽广的窗外风景,让家愈发迷人。 这个项目整体做下来还是有蛮多曲折的。最开始业主找风水先生测量过屋子,想把厨房和卫生间的位置对调,再把窗户封起来,后来经过反复沟通,厨卫还是保留在原位,不过窗户是封掉了,所以需要用设计来弥补采光。 还有,原本阳台是不允许包进的,后来等客厅电视背景墙做好之后情况发生转变,所以阳台部分又有加半截电视背景进去。 我个人对这套作品最满意的地方在于空间整体的平衡,稳中求胜的色调搭配以及极简工艺的处理,将那种无拘无束非常自在的感觉很好地表达了出来~ #户型改造分析 优点:原户型客餐厅区域比较开阔,房屋结构算是方正,采光优秀。 缺点:空间结构上的梁比较多,卫生间的门对着餐桌等。 设计改造: ①厨房与餐厅打通,餐厨连接成开放式布局,并压缩客卫空间来增大面积,增加采光。 ②餐厅增加岛台,并将中心偏移,避开客卫的门。 ③主卫做干湿分离,台盆区放到主卧进门处,并以玻璃隔断的形式让空间更加通透。 01. 客厅 Living Room 晴好的天气,明媚的光经由轻盈的帘幔洒进室内,让空间幻化出清浅、绵长的慢生活图景。 客厅的基底是纯净的奶白,豆腐块状的布艺沙发搭配烤漆面的异形茶几,打造沉浸式高级感。 背景墙做优美的白色弧形面,空间在获得艺术张力的同时,变得立体而生动。温暖的人造光源均匀散落在墙和顶,丰富室内光影的变化体验。 家具的线条鲜明,空间轮廓简洁明朗,增添上自然植株的点缀,呈现朴拙、谦卑又内含温情的姿态。看似是没有温度的外表,却充满了让人感动的细腻与温暖。 02. 餐厨空间 Dining Room & Kitchen 餐厅用藤编餐椅、长凳搭配玻璃落脚的原木餐桌,多变的材质与形态进一步丰富空间结构。岛台规划有储藏区域,连接餐桌的地方预留了插座,对于有频繁性多人聚餐的家庭来说,这是必不可少的。过道还嵌入冰箱,节省来去的动线。 原木与藤编是作为一对拥有相同属性的默契搭档,是极简、侘寂中的常客,它们带着生命的韧性,赋予俗世柴米油盐以最亲切的自然气息。 西厨区不浪费转角的空间,合理设计尺寸,延伸出阅读休闲的功能,柔软的光晕从书柜内透出,显得沉稳雅致。 厨房在符合人体工学的前提下设计出流畅的烹饪动线,顶柜、地柜、岛台,一应俱全,肌理感的互动丰富空间层次。 03. 卧室 Bedroom 主卧空间的构筑亦秉承全屋简单有细节的思路,灰色的床品结合温润木饰面半墙,打造静谧、安稳的睡眠环境。墙面融入向上拉伸的格栅元素,流畅线条升华空间韵律。 床尾在恰好的尺度中构建功能储纳区,与墙体默契结合,为休憩空间留下平整舒心的观感。从浅色系中析出的恬谧因子,在空气中慢慢释放着抚定心灵的温柔能量。 卧室光源的设计亦遵循公区域的处理,柔和均衡的光线帮助主人迅速入眠。睡眠区与卫浴区似隔未隔,玻璃的特性让光线往来无碍,营造呼吸感十足的通透氛围。 04. 书房 Study 书房容纳阅读办公、休息、收纳等多重功能,落地窗揽进外部风景,为时光的悠然漫渡,写下美好的注脚。 05. 卫生间 Bathroom 纯粹、自在、舒适,在物理空间与人所触碰的每个界面,设计都全力呈现让身心放松的体验。尺度奢华的极简质感卫浴设计,清晰地表明主人对品质生活的追求。





























在线预约专享优惠
x
联系电话 :400-8800-618