锦绣嘉苑 | 130㎡奶油轻法式,满载幸福况味!
发布时间:2022-06-28

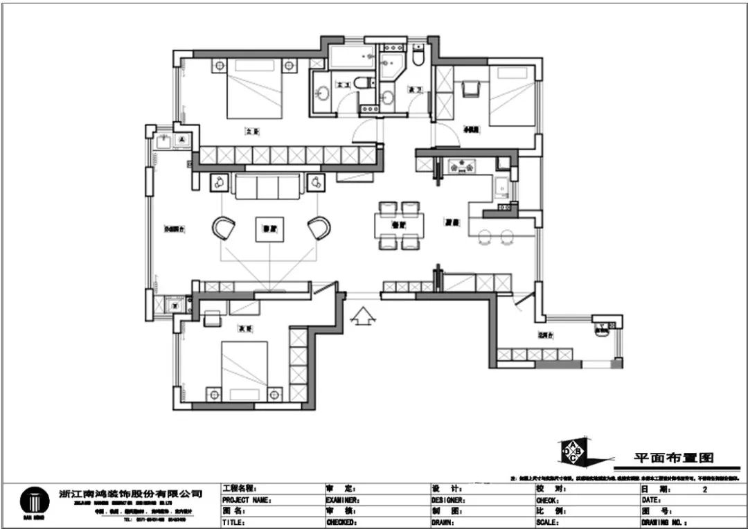
项目信息 / 地址:锦绣嘉苑 城市:中国 杭州 户型:三室两厅 面积:130㎡ 风格:现代法式 设计施工:浙江南鸿装饰 明智的人更喜欢诗意, 因为诗意是灵魂的事。 / 阿尔贝·加缪 女主人是家庭主妇,平时空闲的时候喜欢打扫整理屋子,对屋子收纳空间的要求较高,风格上则喜欢优雅的现代法式,更契合本人的温柔性格。 设计师通过对空间细节与屋主需求的捕捉,以甜美的奶油色为基础打造居室,局部搭配岩板、金属的材质,加入古典意味的壁炉,墙面做出流畅的石膏线,增强空间的艺术美感,同时也体现屋主不凡的品味。 #户型设计分析 设计改造: ①厨房利用餐厅的空间扩大,做吧台延伸功能。 ②客厅电视背景墙做隐形门处理。 ③客厅包进阳台,空间看起来更加宽敞通透。 客厅 Living Room 客厅以低饱和度的奶油色为基调打造,阳台被包进利用后采光也得到很大改善,弧形门洞呼应室内柔和的软装线条,赋予流动、温和的空间氛围。 顶面由点线光源组合,既保持简洁的特性,又延伸了视觉。同色系的家具和谐搭配,呈现端庄姿态。墙面则以石膏线条装饰,烘托法式的优雅韵味。 过道处刚好正对入户门的位置,是客人进门后的“第一印象”,在摆设上需倍加用心,因此设计师选择古典风格中常见的壁炉搭配饰件与挂画作为一方端景,让空间有了岁月沉淀的艺术感。 生长茂盛的绿植象征蓬勃的生命力,居室在植物与光线的相伴之下,变得感性而有温度。 餐厅 Dining Room 客餐厅的一体化设计在保证功能彼此独立的同时,也让动线更为流畅。开放式布局有助于光线穿透,放大的不只是空间,更是整体的氛围。 茶色玻璃贴近暖光的色温,为居室增添暖意。 移门关可隔绝油烟,开则让餐厨连通,增加人与人的互动,设计师希望在有限的空间内,给予屋主最大的选择自由。 厨房 Kitchen 半开放式厨房沿空间的结构规划出U型的操作台与相连的吧台区,以此弱化承重柱的存在,也拓展了餐厨的功能。通体的白同样有助于放大空间,减少促狭感。 过道设计通顶柜隐藏蒸烤箱和冰箱,合理利用每一寸空间。 卧室 Bedroom 主卧延续客厅的线条与色彩,立面干净的储物设计,同构出一个纯粹自在的睡眠空间,帮助主人释放平日里紧张嘈杂的心绪。 让视觉减负,把空间留给居住者,居室会自然成为盛放光阴的容器,慢慢酝酿出幸福的况味。 卫生间 Bathroom 卫生间以白色为基调,体现出空间的干净整洁,浅灰的台盆柜面增添层次。





















下一篇:不实用卧室:退退退!
在线预约专享优惠
x
联系电话 :400-8800-618