122方现代风三居室,这空间感真真是极好!
发布时间:2022-07-18

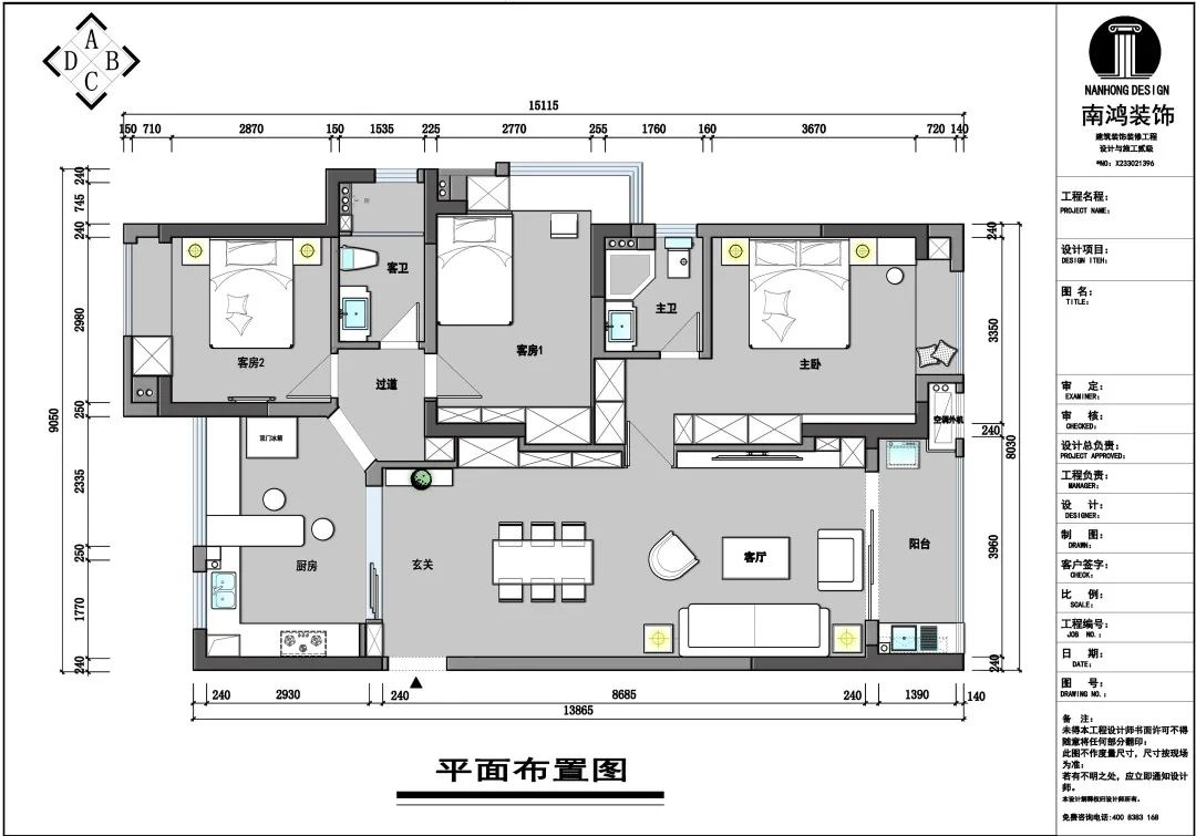
项目信息 / 地址:金茂悦 城市:中国 杭州 户型:三室两厅 面积:122㎡ 风格:现代风格 设计施工:浙江南鸿装饰 本案常住一家三口,也是要给业主孩子未来做婚房使用。 明净又自由的空间,舒适、宜居是居住者最核心的诉求。大量带有天然纹理的石材和皮艺面料带来简奢的美,浅多深少的色彩构建层次,营造舒适惬意的空间氛围,结构打造则以硬朗的线条为主,进一步增强居室敞亮的空间感。 #户型设计 玄关 Hallway 玄关增加进深,正对入户门的位置,我们用矮柜搭配花艺摆件来打造端景,鲜妍的红寓意生活的美好。 客厅 Living Room 笔直的线条描摹出整个家沉稳又有气度的个性,设计以易显贵气的石材与皮革面料,配合着自然光与顶面无主灯设计,为空间塑造宽阔、明朗和自由的面貌。 暖色沙发是这个灰度空间中的视觉吸睛点,浅浅增加了温馨的格调。软装做简约布置,体量适中,贴合居住者的生活习惯。 餐厅 Dining Room 餐厅与客厅连通,由于背景隐形门的效果,两块区域看起来更加完整和统一。 餐厅宽敞的格局能轻松容纳多人就餐,简洁流畅的线条打造纯粹内敛的高级质感,餐边柜则以原木打造并内嵌灯带,用以衬托温暖的就餐氛围。 厨房 Kitchen 原户型的厨房比较小,屋主希望能改造得更宽敞一点。我们将厨房做了半开放式设计,并在中部砌出岛台,操作区因此变得更加富裕。浅色的基调使空间清爽明亮,洗-切-炒动线高效,让主人能够尽情享受烹饪带来的乐趣。 卧室 Bedroom 家里的卧室走同样的简约路线,灰色的基调,黑白灰相间的床品,纯色的天花板,明与暗、刚与柔和谐相融,勾勒安心入睡的场景。 卫生间 Bathroom 卫浴空间以素色为基调,干净利落的高级,是关于生活品味最好的宣言。























在线预约专享优惠
x
联系电话 :400-8800-618