【南江壹号】300㎡轻奢大平层,精致格调,掌控全场!
发布时间:2022-09-19


而在这些细微的琐碎中
我们大概总能捕捉到一些轻盈的喜悦
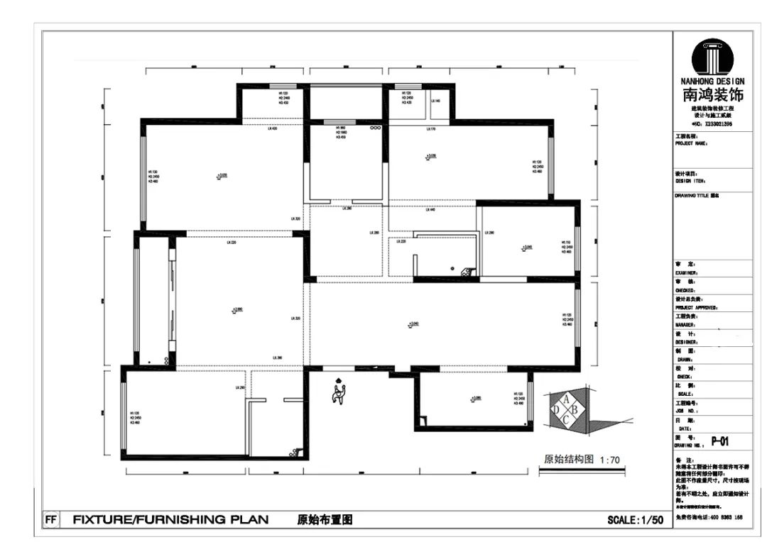
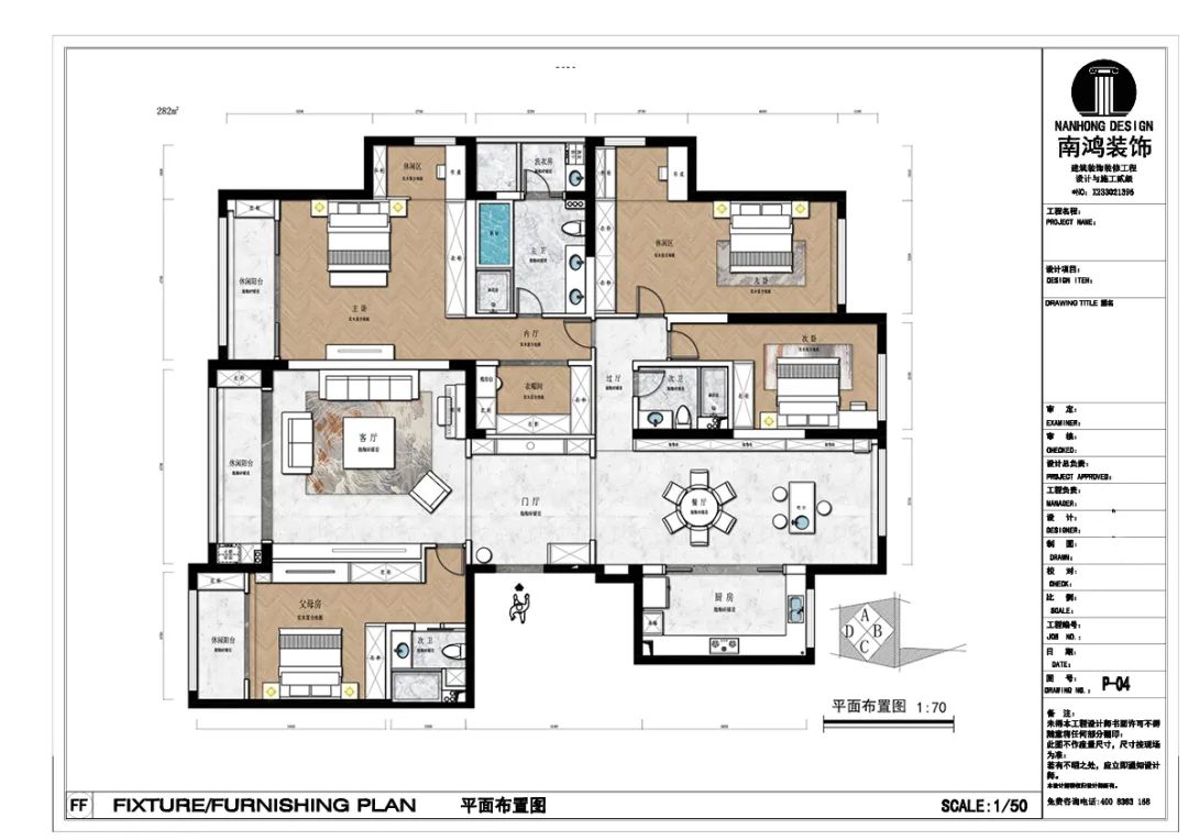
||| 项目信息 地址:南江壹号 城市:中国 杭州 户型:四室两厅 面积:300㎡ 风格:现代轻奢 设计施工:浙江南鸿装饰 本案为300方现代轻奢风格大平层。户型比较方正,在功能区域划分上设计师并没有做太多改动。居室内部采光充沛、开阔明朗,石材与原木为主体结合,形成空间的冷暖平衡。 除了打造居室整体的轻奢外形,我们也同样关注着各种内饰细节的连续性和自然感,以让空间结构更加完善,看起来更加统一。 居室整体以银梨木色为主,高级灰为辅,加一些明亮跳色的点缀,作为承载老中青三代人同堂生活的空间,我们遵循多元化的场景设计法则,让每个居室成员都能找到专属于自己的生活场域。 ▲原始户型图 ▲平面设计图 玄关 - Hallway 入户门厅是一个非常方正规矩的空间,端景以多种材质组成显示层次,墙顶灯光烘托氛围,两侧温暖的木作好像谦卑的侍者,静静等候主人每日的归家时刻。 客厅 - Living Room 客厅以规整有序的外观架构和精细调配的材质比例展现理性的轻奢格调与高雅的审美体验。阳台包进室内使用,让光线自由流动,成为空间天然的配饰。 两侧背景墙装饰结合石材、硬包和木格栅,视觉丰富也不会显得过度饱满,无主灯设计辅助空间成境。鲜亮的Poliform螃蟹椅成为平衡空间的妙品,让格调在细节间流露。 餐厅 - Dining Room 餐厅同样有着开阔的视野,与厨房用黑框的玻璃门相隔,将中餐爆炒的油烟阻隔在内。餐桌的围合用餐形式有助于增强家人间的情感联系,而强大的储物系统也最大限度保证了公区域的视觉整洁。 酒水杯盏等可以有序地存放在玻璃柜内,将气度、排场精致收敛。餐厅空间富足,所以我们额外设置了一个黑色的休闲水吧台,回字形动线让区域通达便捷,料理时还可顺势扩展成西厨操作台。 卧室 - Bedroom 主卧以低饱和度色彩和温润的木材勾勒日常安睡的场景,搭配柔和灯光营造舒缓的身心庇护所,呈现主人从容不迫的生活态度。 儿卧走清爽的蓝色系,背景做了简约的弧形造型,更显活力。 卫生间 - Bathroom 浴缸、淋浴房、洗衣房、双台盆...卫生间拥有非常完善的功能,宽裕的尺度带来最大化的家庭舒适体验。























上一篇:可恶,又被嵌入式设计装到了
下一篇:小而美的家居设计,它排第一?
在线预约专享优惠
x
联系电话 :400-8800-618