西溪公馆 | 品茶闻香,静观自在
发布时间:2022-09-26

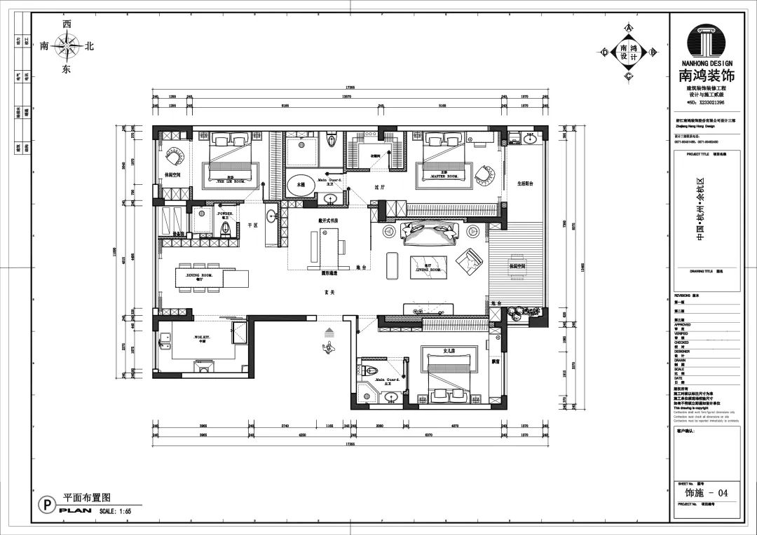
项目信息 / 地址:西溪公馆 城市:中国 杭州 户型:四室两厅 面积:188㎡ 风格:新中式 设计施工:浙江南鸿装饰 · 作品前言 本案常住一家三口,主人事业成功,平时喜欢喝茶,爱好书法,属于是书香气质比较浓厚的门第之户。 室内地面使用素感灰色大理石,顶面留白加上实木线条套深黑棕色,墙面以淡米色墙布和中式风格硬包结合,局部有黑棕色木饰面点缀,柜门用定制复合实木并内嵌金属线条,鱼肚白岩板电视背景墙更显大气,整体营造典雅的家居氛围。 设计师有话说: 这个家的业主我印象很深刻,因为刚开始动工的时候,男主人就非常紧张,担心最后的样子会跟效果图相差很大。后来慢慢的水电、木工、泥工、油漆等工序依次完成,等到软装进场,男主人才总算松了口气,对最终的效果表示非常满意。 装修是一条漫漫长路,牵涉到的事项那么多踩坑比较难避免,但是业主既然选择了我们,把信任托付给我们,我们也不会辜负他们的期待,会尽可能把他们心目中的家最理想的样子给还原出来,最后得到业主的亲口好评,我觉得在项目跟进中付出的所有辛苦都是值得的了。 · 户型设计分析 -原始户型图 优点:大平层,结构方正,南北方正,有超大面宽的阳台。 缺点:户内弯绕较多,动静区混杂,主卧私密性差,卫生间有暗卫。 -平面设计图 设计说明: ①玄关处拆除原有墙体,做了一个中式镂空圆景,背后是一个半敞开的禅意书房。 ②客厅阳台做地台设计,增加趣味感和休闲性。 ③女儿房做了一个落地玻璃的卫生间,引入自然光,解决暗卫问题。 ④主卧设计独立衣帽间,扩充卫浴面积,留出独立木桶的位置。 Hallway 玄 关 门厅与书房的隔墙镂空做中式圆景 空间内外彼此独立又相互流动 幽然如画,静中生趣 Living Room 客 厅 空间以现代手法构筑雅致的东方美学 软硬装的方正线条创造一种序列感 木体黑棕的颜色为其定下沉稳基调 背景墙则借远山飞雁灵鹿等意象 将自然的灵犀纳引入室 客厅将阳台包进打造地台做休闲区 静享远离都市喧嚣的闲暇时光 Study 书 房 圆景与屏风隔断 无形划定书房区域 在此煮茶、品香 虽无丝竹管弦之盛 亦足以畅叙幽情 Kitchen 厨 房 空间以简素的白和温润的木结合 合理的动线规划能让厨房使用体验更加舒适 Dining Room 餐 厅 自然的木饰延续沉稳典雅的姿态 明亮的光线给予餐厅最大的适意 柜面的金属线条丰富层次 印刻民族特有的礼序之道 Bedroom 卧 室 主卧的面貌是静雅而温柔的 器物不喧、灵动自在 伴随光影投入 散发着恰到好处的温度 女儿房则更偏简约的调性 飘窗台、收纳龛和书桌一体成型 兼顾工作学习和休闲的双重属性 充分利用了空间 Bathroom 卫 生 间





















在线预约专享优惠
x
联系电话 :400-8800-618