天津人在杭州,以细致取胜的loft时尚家,速速开启惬意时光!
发布时间:2022-10-03
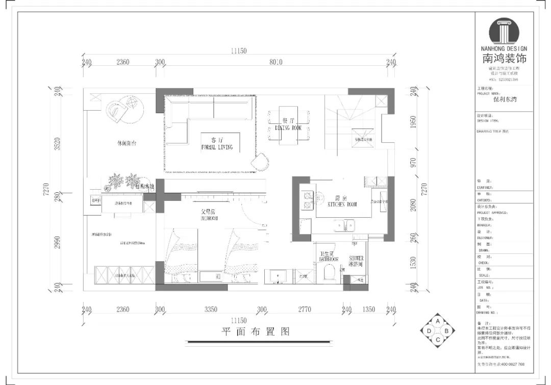
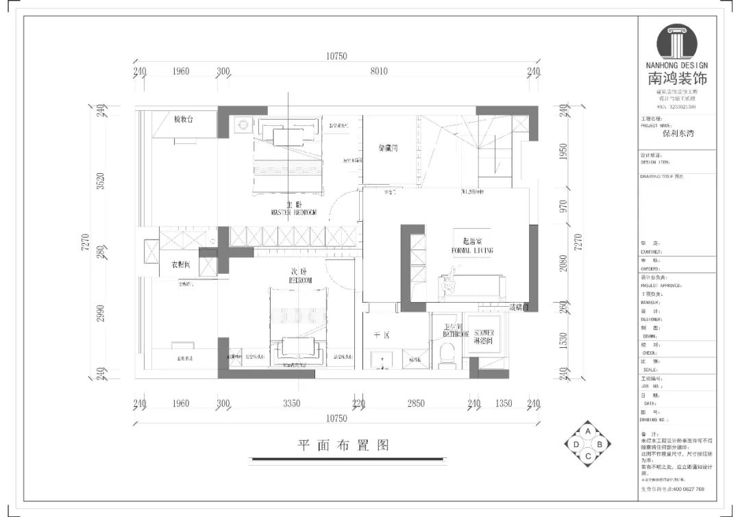
项目信息 / 地址:保利东湾 城市:中国 杭州 户型:Loft 面积:150㎡ 风格:现代简约 设计施工:浙江南鸿装饰 屋主是位天津女士,有着在北方人中常见的热情直爽的性格,但在生活中又有着极细致的一面。她提出的要求是风格简洁时尚,不能太浮夸,家里的每个空间都能得到充分利用,并且对储物量也有一定需求。 家里的成员有:业主自己,她的儿子,两位老人,还有一只狗狗。 老人的腿脚不太方便,因此设计师将卧室安排在了一楼。长辈房内的家具都是依照他们原先在天津的旧家的家具尺寸一比一还原打造,以帮助两位老人尽快适应杭州的新生活,避免各种不便。楼梯增加扶手,保证他们日常走动安全。 设计上我们摈弃了复杂的造型,尽可能让硬装简单清爽,用少量的材质、色彩和装饰元素,来打造宁静、纯粹、无杂质的居家空间。整体色系为原木色、奶茶色和白色搭配,给人干净明朗又纯净舒缓的感受。 居室内硬装的材质基本都是浅色原木饰面,踢脚线、房门、柜门、楼梯踏步等我们也都统一了颜色和材质,还有隐形拉手的设计,让空间看上去非常完整。全屋的灯光布置也相当全面,除顶部无主灯设计,背景墙、柜子、踏步等都有隐藏光源的存在,为空间营造出温馨气氛。 设计师有话说 / 这个项目由于前期业主在出租,后期楼板要现浇,导致整个施工过程比较漫长,也因此让我和业主阿姨接触了更长的时间。阿姨和我非常投缘,现在项目全部完工了,我们也还是会经常联系,过节的时候阿姨会打电话叫我去吃饭,怕我一个人在杭州孤单。能遇到这样的客户让我由衷地感到开心,也是我的一种荣幸,大概也是我这么热爱做设计的原因之一吧~ 本案的亮点我觉得就在“稳中求胜”这四个字。空间整体并不会给人很张扬很突出的感觉,但你细细品味,就能发现每块区域中都有那么一点小小的亮色,这些亮色或许就是我们平凡人在平凡生活中收获的感动、幸福的一种小小具现。 【户型改造分析】 ▲一层原始户型图 ▲二层原始户型图 这个房子的建筑面积有150方,算是比较大的,但因为是loft结构,所以分摊到每层只有七十多平米,再加上主人对房间数量的要求还是比较多的,所以每块功能区能分到的空间都不大。优势就是户型比较方正,采光也不错。 ▲一层平面设计图 ▲二层平面设计图 设计改动:我们尽量利用了阳台以及设备平台等赠送面积来提升空间的利用率。长辈房和客厅的阳台都包进,二层主卧和儿卧也都把阳台做了充分利用,儿卧设置衣帽间和书房空间,主卧则利用阳台设置了化妆区和休闲区。 客厅 / Living Room 低饱和度白色配奶茶色的客厅空间,以留白呈现高阶质感。两侧立面都做了简单造型,悬浮与局部叠搭的形式保留整体的简洁大气,又强化了立体感。 入户看向客厅的视角。温和灯光全面包裹着白净的空间,调和出一幅慵懒、惬意的生活画卷。 沙发背景墙用块面叠搭出简约造型,丰富层次。弧形的结构更加柔和,在浅浅的光晕之下好像浮了起来,温温柔柔的让人喜爱。 可可爱爱柯基犬为我们友情出了个镜~家会因为那些我们所喜爱的事物焕发出灼热的光彩,是所有外在装饰都无法替代的。 电视的白墙背景在底部留出距离,木作的电视柜同样悬空,让视觉轻盈无压。 餐厅 / Dining Room 餐厅位于客厅和楼梯区域之间,布局紧凑。留白背景保持明净简约,从容奏响幸福生活的旋律篇章。 当外在的浮华喧嚣褪去,剩下的就是归属于心灵的安宁。当家真正成为了一处避风港,居住在其中即可以变得松弛而随性,那么空间自然也不需要多么精心浮夸的装扮了。 从楼梯看向餐厅的视角,地毯上的几何色块一同入框,结构线条自上而下循序排布着,质感美学展露无余。 楼梯 / Stairs 楼梯加入踏步灯和木质扶手,保证老人行动安全。朴素的形态包容纯粹,原木材质传达安稳、平和的情绪。 卧室 / Bedroom 主卧形色简洁自然,扑面而来的都是放松和舒适。室内阳台设计落地窗,空间因光与景生韵,恰到好处地击中了人们对生活的美好期待。 次卧延续温润的木质感,充分诠释自然主义的随性和自在。悬空式床头柜连接立面书柜一体打造,让视觉丝滑流畅,也丰富了居住形态。 卫生间 / Bathroom 一些鲜亮的颜色有助于打破常规,唤醒活力,就像平淡生活中也要有不可或缺的激情,让我们可以拥抱希望,坚定地朝着梦想追逐。

























在线预约专享优惠
x
联系电话 :400-8800-618