【临江花园】浪漫奶油轻法式,暖暖的色清新的调,好米!好米!
发布时间:2022-10-10
去感受吧
去感受微风、晨曦和朝阳
去感受希望
去触摸
去触摸真实的生活
作品前言 / FOREWORD
我们的业主是一对热情开朗的九零后小夫妻,企业职员,向往温暖又浪漫的生活,家里还有两只猫咪。父母不在杭州,所以日常就是“两人两喵”的休闲居家模式。
合计装修的时候两人还在备婚阶段,甜蜜非凡,他们希望设计师能打造一个温馨的奶油法式小窝,同时保留三房,保证收纳并兼顾宠物需求(预留猫砂盆等宠物设施)。


全屋色调采用温馨的米色加上清新奶绿色辅助,精致的石膏线条助力打造一个灵动的法式空间。阳台的花砖、卫生间干区的羽毛砖,也都和整体空间呼应。窗帘选用的是复古绒布材质,家具上搭配羊羔绒模块沙发,弧形玻璃茶几,以及绒面单人沙发,让客厅鲜活有趣、柔软可亲。

DESIGN
设计师有话说
“我一直都觉得,做设计最开心的事,就是能遇到各路形形色色可爱的人,和他们交流,去触摸、感受他们真实的生活。这个家同样如此,两位主人都是非常的可爱和有趣,所以我觉得他们生活的空间也应该是贴合主人自身的气质,要柔软亲和同时不呆板,能让人忍不住去探索...
质感这东西并不是用高昂的材质堆出来的,简单的材料也能打造出好的落地效果。设计同生活一样,你用心去打磨好每一个细节了,格调自然就出来了。”

地址 | 临江花园
城市 | 中国 杭州
户型 | 三室两厅
面积 | 109㎡
风格 | 奶油法式
设计施工 | 浙江南鸿装饰
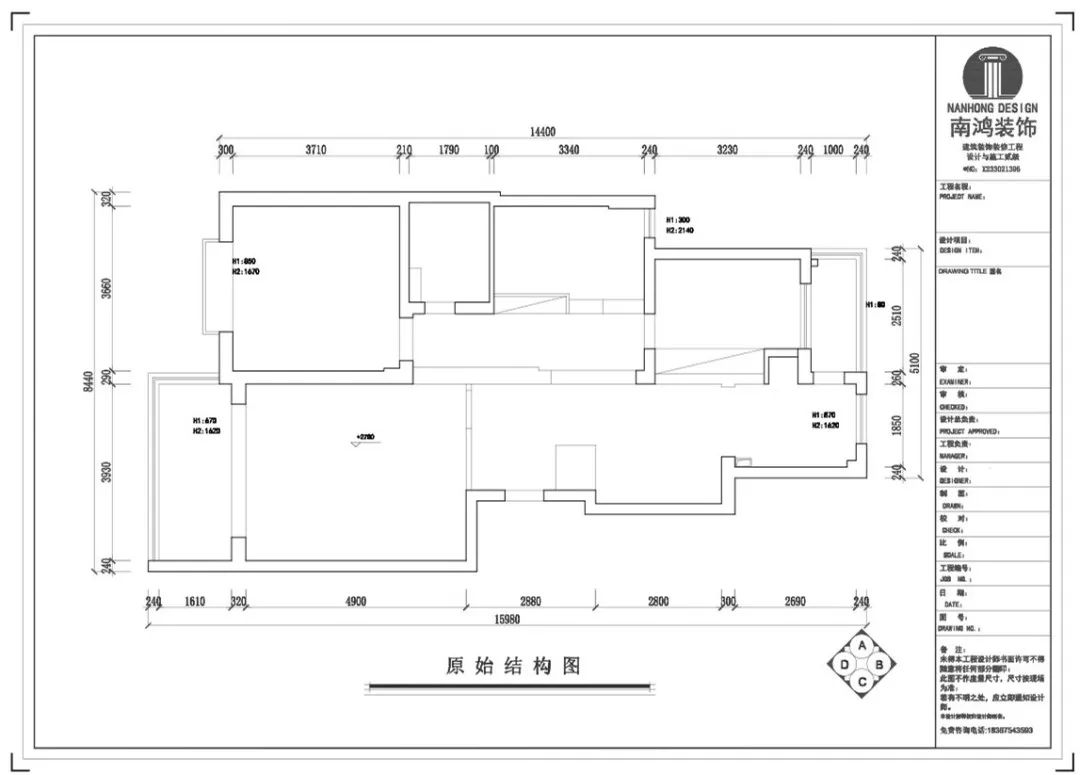
原始户型图 ▼

这个家的户型比较方正,但是客餐厅狭长,加上房子在一楼,所以采光会差一点。另外,三房除了主卧以外的两个房间都偏小。
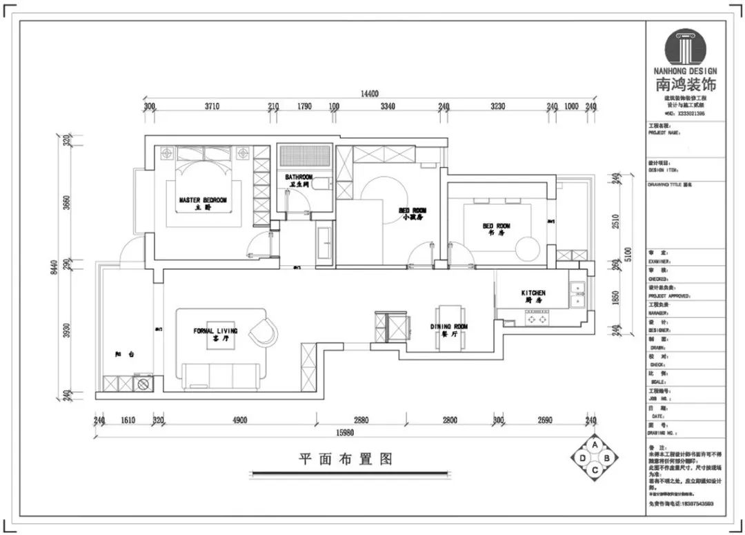
平面设计图 ▼

设计说明:
将原本过道的空间借给两个偏小的卧室,扩大房间面积;狭长的公区域用了很多圆弧元素和精细线条来弱化原本生硬的结构;餐厅使用现代感更强的线性灯设计,灯光氛围比普通的射灯更柔和明亮。
作品详解 / DETAILS
玄关 <<
Hallway

进门右侧是一组到顶的白色玄关柜,既做收纳也是与餐厅间的视觉隔挡,保护隐私。正对的墙面稍微做了色块的造型,不让空间单调。白而暖的光从柜子一路延伸至里侧餐厅,细腻地打造光影层次。

米色波浪纹外轮廓的落地镜是一件妙品,本身就是时尚的装饰,又具备方便主人整理仪容的功能,更是玄关至客厅间一种巧妙、无形的过渡。
客厅 <<
Living Room

客厅墙面用米白和奶绿色搭配,两侧背景墙都有石膏线装饰,增添法式的精致。阳台与客厅连通,扩大视野和采光。

温和、清新、治愈,是室内色彩和家具符号所共同传递出的感官信息。羊羔绒模块沙发不动声色注入柔软因素,两侧无论是原木柜还是落地灯,都有着活泼可爱的造型,让居住心情瞬间变得轻松愉悦。

客厅侧边的储物区域结合了猫柜和杯盏收纳,简洁却是非常实用。视觉自客厅至玄关餐厅有一个很好的延伸和自然过渡,干净的底色描摹出小确幸的模样。



在空间的布置上尽量克制地用色用料,在保证生活获得实用的基础上,为居者保留简单的纯粹。

客厅与阳台之间的门洞做了柔和的拱形,阳光被最大限度地引进来,带来更加明净敞亮的空间体验。

住宅舍弃了中央空调和无主灯设计,转而把关注点更多地放在装饰线条和软装陈设之上,在舍与得之间获取恰当的平衡,为的是呈现最佳设计效果。
餐厅 <<
Dining Room

餐厅顶面拉出灯线,加上一盏主灯,解决因户型狭长而采光不足的问题。半墙的设计让餐厅的韵味与客厅又有了细微的差别,圆润的餐桌椅让空间时尚之中又带着十足的温馨。

冰箱植入过道,为厨房腾出空间,干净利落的氛围让人舒心。
阳台 <<
Balcony

阳台做功能考量,布置为日常的洗衣区,洗衣机烘干机叠放缩短家务动线,花砖与猫猫图案的布帘增加更多的生活情趣。
卧室 <<
Bedroom




卧室的装饰元素与公区域一脉相通,寥寥几笔便让色与形相融、景与情相通,细腻地铺就一室安心。目光所及,尽得优雅与闲适。
卫生间 <<
Bathroom

在线预约专享优惠
x
联系电话 :400-8800-618