八月设计师大会 | 火辣辣的日子,当然要来场火辣辣的PK赛啦!
发布时间:2020-08-20
最近这高温天属实有点强悍,
天天37°+,
这谁受得住呀
网友纷纷戏称:
走在路上的我,
与烤肉之间,
就差了把孜然...

那在这么火辣辣的日子,
当然要应景地来场火热的PK赛啦!

话不多说,
这就给大家奉上南鸿八月份设计师大会内容~
搓搓小手排排坐嘞


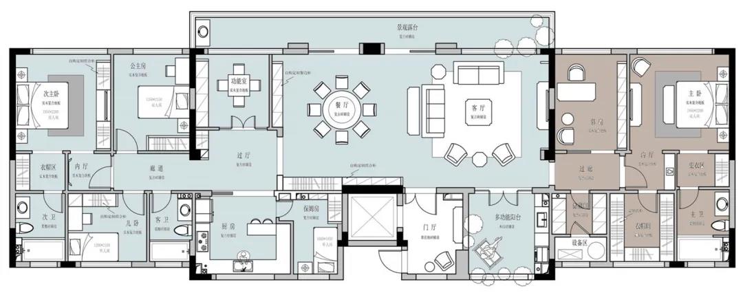
本次PK赛的冠军得主,是来自我们城西分部廖老师的作品——杭州公馆。

- 户型图 -


这是一套270方的顶楼大平层户型,左右对称,供三代同堂的业主一家居住,因为长辈和晚辈对装修风格的偏好不同,设计师特意为房子划分了左右两种不同style~
- 工地图 -


- 实景图 -


屋子的层高足足有3米3,吊顶都细心做了造型,展露典雅的气质。

▲长辈最爱的稳重大气“红木风”
本套案例小鸿也会在之后给到完整的作品介绍,大家可以悄咪咪期待一波啦。


设计一部——招商公园1872

本案是一套精装房的局改项目,面积为125方,做了整体橱柜、家具定制及软装上的搭配,整个家焕然一新。
- 实景图 -

客厅沙发背景墙与玄关部分,玄关原本的柜子换成了现在的实木复合柜。

餐厅,一侧墙体打薄做了个餐边柜。

卧室与书房,卧室飘窗做了边柜,书房则是实用性满分的组合柜。
设计四部——世贸丽晶城

本案为125方现代轻奢风格的作品,选用的是1399套餐。
- 户型图 -


从原户型看,存在玄关放不下鞋柜、原储藏室空间鸡肋、朝北阳台用处不大等问题,设计师均一一进行了调整。
- 实景图 -

▲点击图片可查看作品详情哦
滨江分部——荣星君佳苑

本案为114方的回迁房项目,业主为一家三口,设计师结合夫妻二人不同的空间需求对原始户型进行了优化。
- 户型图 -


- 工地图 -

临平分部——赞成香颂

本案为现代北欧风格的作品,设计上简单清爽,布局也以实用为主,性价比很高。
- 实景图 -







▲李总为上月优胜设计师颁奖
会议结尾,李总做了总结讲话,他强调,设计师应牢牢树立“口碑意识”,更加注重用户体验,努力做好全方位的品质交付,方能让业绩更上一层楼。
在线预约专享优惠
x
联系电话 :400-8800-618