九月设计师大会 | 现代风格“混战”,谁能拔得头筹!
发布时间:2020-09-10
在炎热的夏季过后,九月可以说是最值得期待的月份了。
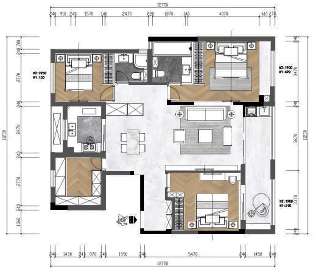
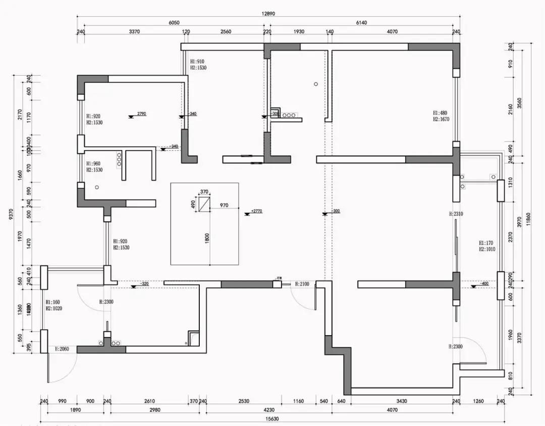
气温渐渐会转凉,月亮也要展示它最圆满的模样,吸收了满满能量的稻谷也将变成耀眼的金色。 最关键的是,小鸿仿佛已经看到国庆中秋联假在向我招手了耶~ 一想到即将到来的美好日子, 小鸿感觉自己浑身都充满了工作的动力! 接下来让我们一起看看昨天的设计师PK赛上都有哪些精彩内容吧! 本次PK赛的冠军,是来自我们设计六部李玲老师一套现代风格的作品——上塘宸章。 现代风格在当下非常流行,对年轻人来说,装修不需要太复杂、奢华,保持足够的品质与设计感即可,现代风格就成了一个很好的选择。 - 户型图 - - 工地图 - 目前硬装已竣工完毕,软装还未进场,来看看房屋现在的状况: 本案主色为白色,辅以高级灰,简洁清爽的个性一览无余。从现场图片能看到,餐厅转角是硬装上的唯一跳色,顶面多是线性光源,同时厨房部分电器外移,增加内部储物空间。 再比照一下效果图: 还原度超高的哇! 萧山分部——衙前自建房改造 这是一套自建房局改项目,业主为一位建筑设计师,因为职业的关系,对装修的需求还是十分明确的。 - 户型图 - ▲针对二楼的主卧空间进行改造。 - 实景图 - ▲主卧部分 ▲卫生间部分 房间及书房的主色是原木民宿风,而卫生间则走精致酒店流。 城东分部——水岸帝景 水岸帝景是一套全屋改造项目,总面积85方,面向钱塘江,拥有绝佳的风景,客户的意向是在北欧风的基础上增添一些轻奢元素,目前尚未施工完毕。 - 效果图 - - 工地图 - ▲业主家在八年前的第一次装修也是南鸿经手的,而且碰巧还是同一个项目经理! 科技城分部——未来海 本案为80方的全包项目,业主希望自己的家是温馨而舒适的,要求有一定的质感与设计感。 - 户型图 - - 效果图 - ▲时尚、精致、随性的艺术生活氛围,能使置身其中的人不自觉地流露出热爱生活的情愫~ 设计二部——丰潭欣苑 本案同样为现代风格的作品,原户型图存在进门正对卫生间和卧室门、餐厅过小、北面厨房扩充等问题,设计师一一进行了调整。 - 户型图 - ▲保留了三个房间一个书房;扩充厨房,处理电器摆放及操作流线问题;尽可能多地考虑到储物功能及分类储存。 - 实景图 - 设计三部——上实海上海 本案为110方现代混搭风格的作品。“混搭”是一种独具个性的家居风格,它可以摆脱沉闷,突出重点,给人带来轻松、随意、自由自在的氛围感觉。 - 户型图 - - 实景图 - ▲祝董为上月优胜设计师颁奖 廖老师本次还特地为我们分享了她之前获得和美奖的作品杭州公馆,随后祝董上台,为大家讲述了当时参赛的台前幕后,并期望全体员工都能保有强烈的企业荣誉感,为南鸿的美好明天奋斗不止!


































在线预约专享优惠
x
联系电话 :400-8800-618