【江湾城】光与景的造梦之所,包容下所有的个性与美好!
发布时间:2022-08-08

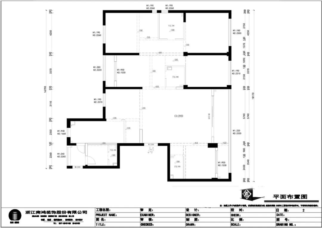
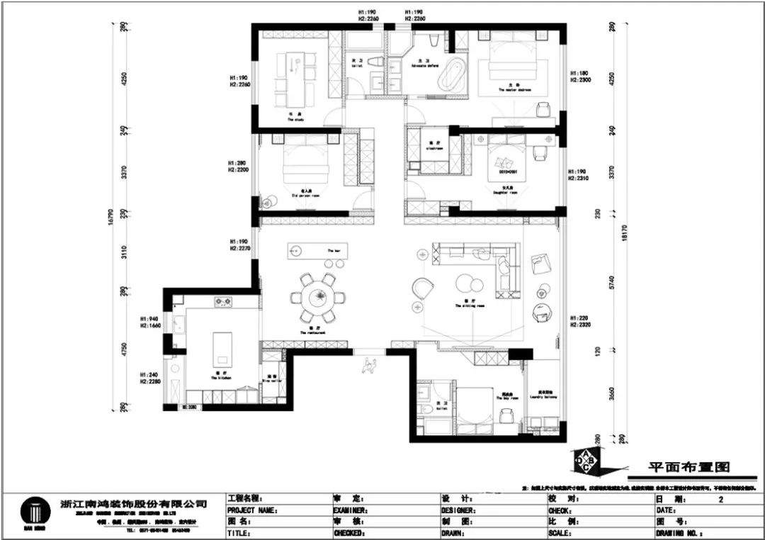
地址:江湾城 城市:中国 宁波 户型:五室两厅 面积:260㎡ 风格:现代简约 设计施工:浙江南鸿装饰 本案位于宁波奉化江边,是一套改善型住房。染色木饰面、浅灰烤漆板以及深色石材等不同材质混搭,呈现层次分明叠加递进的空间感。设计师规划了足够多的储物区域,这样即使是多人居住也不会感到拘束拥挤。个性的空间设计,精致的氛围打光,虚实交错间,给人全然的放松和休闲。 #户型改造分析 ▲原始户型图 餐厅与客厅的比例差距较大,进门左侧遮挡视线,显得空间不够通透;保姆房、设备平台、卫生间几块区域没有得到充分利用;户型中心的暗卫,不利于动线的规划,客户对风水也有忌讳。 ▲平面设计图 ①打通进门的储藏间与餐厅,设计了西厨吧台,餐厅与客厅共同形成一个大的开放式空间。玄关与过道可以延伸视线,给人更多的遐想。 ②厨房往西拓展,中间设计岛台,增加下厨时的互动。消防门隐藏在高柜内,生命通道必须保留。厨房矩形规划完成后,对剩余空间也进行利用,做了一个酒窖来满足客户收藏酒水的喜好。 ③公卫移到了靠东有窗户的位置,增加采光和通风。其中一个卫生间给主卧做衣帽间使用,增加主卧的储物区域。 玄关 沉寂的木色将亲切的自然调性慢慢舒展开来,装饰舍弃复杂,只以简练但精巧的设计语言,在这个入户位置点缀出家的暖意。 客厅 浅淡的素色,馨暖的无主灯设计,自然的纹路,加上适当的石材搭配,共同组建出一个包容感强、舒适惬意的会客场所。 客厅将简约的气质融入到相对板正的家具形态之中,布艺的多人位沙发组合拼接式茶几,自成一体。沙发背景做储物与展示柜,电视背景墙选择了岩板材质,包入客厅的阳台则设计黑色地台做出休闲景观区,与背景墙部分衔接,让视觉得到延展。 客餐厅之间没有明显区隔,通透的开放式布局让家庭公共活动区域得到充分拓展。 餐厅 简约的圆桌餐厅与精致的西厨布置,塑造人间烟火与岁月时光交融的艺术美,开放式行为模式也为家人间的互动创造更多可能。 厨房 厨房选用时尚潮流的克莱因蓝,显得非常清爽有活力。L型设计让下厨动线通畅,洗菜、切菜、烹炒路径合理,空间能够实现最大化利用。 通顶柜融入冰箱和蒸烤箱,让立面简洁。厨房还连接着专门的酒窖空间,酒窖门与厨房移门共用一个门套,视觉连贯性非常好。 过道 空间的每一处转角都能捕捉到细腻的现代化细节处理。明与暗,光与影,线与面,都很好地通过从顶弯折拉伸至地的灯带有机结合了起来,将视觉与行走路线在不知不觉中引导至内部的私密空间,并带来充分的美学效果。 卧室 卧室同样铺优雅的鱼骨拼地板,沉稳的色调让温和与平静成为空间中可被感知的内容。墙面做出护墙板和木格栅的造型,增添许多层次。内卧与卫浴之间加入通透的玻璃隔断,帮助导引室内光线。 男孩房选择纯净的天空蓝作为主色系,与卫浴之间加入了长虹玻璃,菱形造型增添活力俏皮的感受。 女孩房考虑到孩子的年龄则是一个更加“卡哇伊”的空间,圆润家具造型可以避免日常磕碰,粉色的墙粉色的柜面,还有软萌的“兔子床”,空间足够地灵动有趣,让孩子能尽情漫游在她的童话王国~ 书房 染色黑胡桃木材质搭建起这个深色有气质的书房,书柜内的隐形灯光起到调节气氛的作用。 卫生间 住宅氛围营造关键的是要在美学和心理学的基础上,进行颜色、光线的搭配和室内质感的塑造。卫浴空间以深灰的瓷砖构建,搭配精到的灯光设计,呈现出神秘而优雅的气质。























在线预约专享优惠
x
联系电话 :400-8800-618