178㎡意式极简,高级感描绘生活之诗,又是一套绝美精装房改造!
发布时间:2022-08-15
就像无拘无束的风
在时光里轻盈地走
...

本案是一套四室两厅三卫格局的精装房改造项目。客餐厅带双阳台,视线开阔。卧室面积也还不错,总体看上去四平八稳。原本买点家具就可以入住了,但是女主人对生活品质是非常有追求的,所以找到了南鸿决定进行房屋改造。

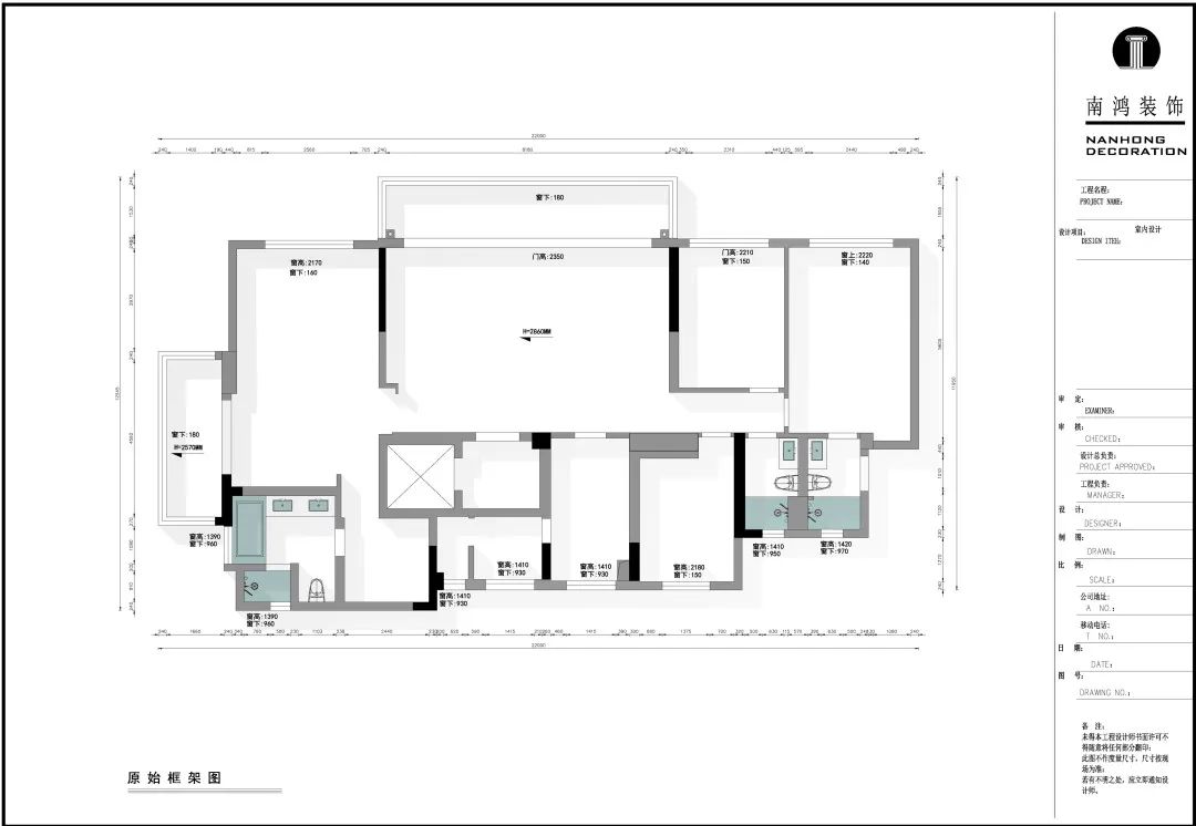
▲改造前
业主对原厨房的面积不太满意,加上父母不同住,所以省去了一个卧室,和厨房并在了一起。客餐厅在一条动线上,从南到北一整个大通透,显得相当阔气。厨房内安置一个2.4mx1.2m规格的大岩板岛台,早餐台、酒吧台、茶桌、料理操作台等多种功能集于一身。一日三餐,虽是平凡,却也让人心安。

全屋采用无主灯设计,餐厅的线条灯质感满满,书墙的灯带,柜内的各种隐藏光源,每个角落自由规划的插座,让便利性渗透整个居室,居住在其中的人便会愈发享受宅家的日子,而这种便利性对于身处“疫情时代”的我们来说,尤为重要。

整体风格遵循意式极简的设计思路,咖色做主导,搭配不同深浅不同材质的灰,构筑了一个气质清雅、端庄大气的生活空间。大量的无边框设计和整齐划一的柜体,加上极简线条元素,让空间干净规整,开阔而舒朗。

▲原始户型图

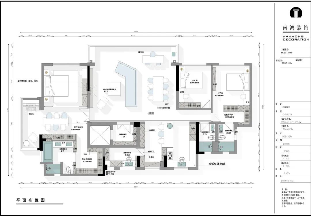
▲平面设计图
设计说明:
①舍弃了一个卧室,和原厨房打通,做成中西结合的开放式结构。
②木饰面加隐形门的设计手法,弱化门框的存在感,墙面更加简约和整体。
③保留三间卧室,主卧增加木门隔断形成半开放式格局,可开可合,灵活机动。
④男孩房面积不错,但是卫生间门直冲着床,不太合理,所以在两者之间增加了步入式衣帽间,增加储物的同时,也把卫生间的潮气和湿气给隔绝掉。
客餐厅 /
Living Room & Dining Room

客餐厅是南北通透的大横厅格局,宽阔的场域包容流畅而自由的活动路线,让每一位居住其中的人都能感知到充分的自在。灰、棕、白为主的色系打造温厚体验,光线透过阳台的软帘照进室内,淡雅、轻柔、和煦的磁场就此生发、蔓延。

客厅背景墙以木格栅为底,主卧房门隐于其中,垂直竖纹拓展了空间的纵向叙事。木材的温暖碰撞石材的冷冽,居室于对立统一中寻得了恰当的平衡。

浅色的沙发、地毯用细腻的质感为极简现代空间带来更多温度。餐厅背景墙元素与客厅保持一致,顶部装设线条灯,空间艺术气质愈发浓厚。木元素在各处框架适时出现,串联起不同区块间的自然情愫。


设计以一种接近生活本质的视角,尽情描摹着点滴日常的丰富特性。
厨房 /
Kitchen


开放式厨房包容宽敞的西厨区,岛台作为补充,让日常生活变得高效便捷,深灰色柜面尽显低调酷雅的气质。

桌椅、吊灯、挂画的搭配布置简练而不失优雅,跳色的点缀打破单调,简净中内蕴着丰盈。岛台可做收纳、操作台和餐台的补充,方便休闲时喝咖啡、品茶、做甜点等。有时亲朋好友来聚餐,这儿又会闪亮变身为一个互动频繁的社交中心。

超大的厨房空间能让主人“大展身手”,尽情享受烹调美食的乐趣。白色百叶帘调节光线,墙面增加挂件收纳,保证区域整洁。高柜融入电器,全面提升使用舒适度。
卧室 /
Bedroom

主卧通铺鱼骨拼地板,由于内部空间很大,便做了木质移门代替实体墙来隔断睡眠区和其他区域。白天拉开移门,空间瞬间变得开阔;夜晚关上,就形成隐私性好、安全感十足的睡眠区域,空间利用相当灵活。墙面与顶面的隐形光源勾勒甜美的梦境,一切都是恰到好处。


两间为孩子准备的卧房均是结合孩子的爱好与性格而设计。男孩房基调稳重,简约的立面层次刻画高级质感。女孩房氛围更加的恬淡轻松,浅浅的肉色让空间平易近人,可爱的玩偶透露孩子天真美好的童年梦。
--
·项目信息·
项目名称:宁玥府
设计风格:意式极简
项目类型:平层
项目地点:中国·宁波
项目面积:178㎡
项目服务:设计·施工·硬装·软装 全案设计
设计单位:浙江南鸿装饰
施工单位:浙江南鸿装饰
- Thanks For Watching -
在线预约专享优惠
x
联系电话 :400-8800-618