154㎡二胎房硬核改造,原木温馨又有书香气!
发布时间:2022-09-05
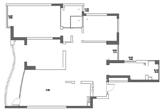
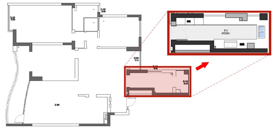
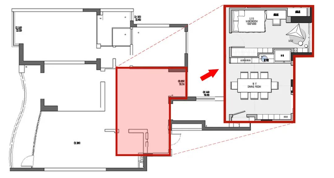
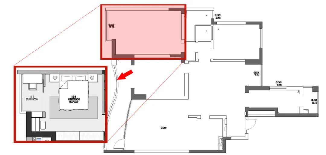
项目信息 / 地址:春江花月 城市:中国 杭州 户型:四室两厅 面积:154㎡ 风格:北欧原木 设计施工:浙江南鸿装饰 其实很多时候 你并不需要做什么 真诚即可 / 本案是一个二胎房改造项目,家中常住五口人。女主人是一位白衣天使,性格温柔,喜欢简单清爽的风格。 业主一家因为二胎的到来,对于房屋的功能结构有了新的需求,三房希望改成四房,每个空间的功能仍旧保持完善。另外因为家里现在有了两个小朋友,他们希望客厅能舍弃传统模式,为小朋友提供足够多的活动空间,最好还能增加一些书香气。 ▼改造前 设计师经过与业主一家的多番对谈,在针对他们的日常生活状态和具体空间需求都进行了深入了解之后,重新梳理空间、划分区域,规避原始的限制条件,增添更多新的功能区,力求将他们的生活需求都完整落地。 现代化功能型客厅如今正在慢慢兴起,成为越来越多年轻家庭的选择,本案也同样如此。由于业主提出客厅要以小朋友日常生活的功能需求为设计重心,所以设计师用了整个书柜作为沙发背景,并省去所有多余家具以留出宽敞的活动空间供孩子们嬉戏,这让客厅的功能属性更为丰富也更有居家氛围感。 全屋主色选用白与灰,当然仅仅是这两种颜色的话未免会显得有点“冷”,所幸有大量温润的原木材质中和了这种冷调感,使居室变得温馨而舒适,局部还加入了少量跳色点缀,增加趣味性,让孩子生活的这方天地更为活泼生动。 ▲原始户型图 优点/ 原户型各个空间都很宽裕,尤其是客餐厅,而且南北两面都有大大的落地窗,每个位置的采光都很好,加上全屋无明梁,增加了结构的可改造性。 缺点/ 早先设计不合理,入户玄关拥挤,公区收纳较少;厨房空间狭长,功能难以排布;客卫位于房屋中心,影响客餐厅居住感;餐厅虽大,但功能单一等。 设计优化 ▲改动一:原玄关的墙体拆除,进门视野变得更开阔。同时原客卫的墙体全部拆除,往东收进改成储物区域,增加公区收纳,也为餐厅释放更多空间。 ▲改动二:狭长的厨房空间现重新布局,U型设计让功能完备。因进深限制,厨房一侧的台面深度我们保留了45公分,确保能存放下大多数小家电。 ▲改动三:原餐厅位置分隔一部分,并扩进原来的北阳台,将其改造成了拥有睡觉、学习、收纳等完善功能的第四个房间(女儿房)。餐厅与女儿房的新砌墙处我们也做了合理设计,增加了水吧台和冰箱位来丰富餐厅机能并优化动线,另一面则规划出女儿房的衣物和书籍收纳柜。 ▲改动四:主卧与长辈房之间的墙体拆除,借用部分长辈房进深,将衣柜做到该处,这样主卧放下1.8m的床后,空间依然宽敞。 完整平面户型图 ▼ 玄关 / Hallway 入门进来首先看到是玄关与餐厅合到一体的公区域,在拆除原有墙体之后,空间得到了面积延展。整排严丝合缝的原木储物柜增加公区收纳,同时加强入户视觉的纵深感。 靠近玄关部分柜子设计出换鞋凳和一面旋转镜,既方便日常换穿鞋和整理仪容,又进一步优化了餐厅的空间感。 从玄关往里看,视线所及之处便是通透的整块动区。大大的落地窗揽进光线,灯光的完善布局在空间形成明暗对比,营造柔和的氛围。 客厅 / Living Room 客厅4.2mx5m的跨度还是比较宽敞的,省去茶几,将主沙发与书柜留出约20公分的距离,再加上大尺寸的地毯划分出活动空间,让家长可以陪伴孩子们在这里尽情玩耍。 主沙发一侧搭配的小马椅Pony Chair,出自芬兰传奇设计师Eero Aarnio之手。它的外形可爱,在人体工学设计上也考量周到,无论是小孩还是大人,都能舒服地坐在上面。 沙发选择白与棕的拼色款式,简约大方。沙发背景应业主的需求,我们打造了一面书柜,未来就让满墙的书籍成为家中最美的风景~ 客厅选择投影仪+硬屏的形式布置家庭影院系统供日常的娱乐休闲,细节上防撞圆角的处理,对有老人、有宝宝的家庭非常友好。 纯粹的色调呈现极简的美,原木材质加入自然的诗意,在时光的发酵下变得愈发柔和可亲。 餐厅 / Dining Room 餐厅使用开放式设计,无论视觉感受亦或是空间的实际利用都得到了最大化。过道两侧空间增加大量收纳区域,以及餐边柜和西厨的功能。餐椅选择单椅+长凳的组合,这样无论是家庭成员的日常用餐,还是客人来时的多人聚餐需求,都能得到满足。 喵喵 is watching you ~~ 过道 / Corridor 储藏间的房门做隐形门处理,完美融入过道墙面。 墙面涂刷水泥肌理的艺术漆材质,为空间蒙上一层朴拙、原生态的滤镜,与原木的温柔氛围形成了一种有趣的反差,丰富空间层次。























在线预约专享优惠
x
联系电话 :400-8800-618