210㎡现代轻奢 | 利落且温柔,恬淡而安适
发布时间:2022-09-12

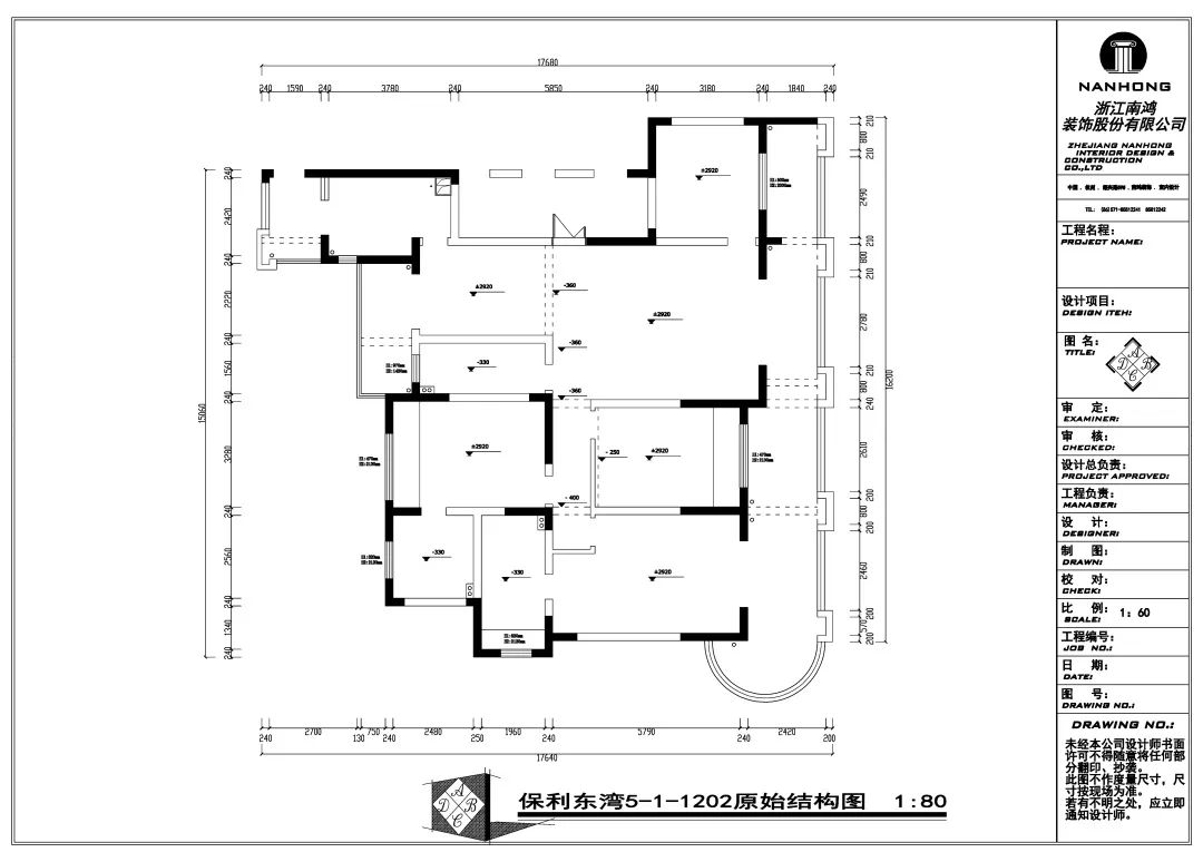
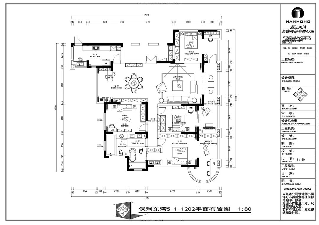
地址:保利东湾 城市:中国 杭州 户型:四室两厅 面积:210㎡ 风格:现代轻奢 设计施工:浙江南鸿装饰 人文与自然,给予设计以无限的灵感,帮助洞察生活本质,建构诗意的理想。 设计就是要去挖掘居住者自身的存在方式,并创造出由内而外可感知到的随心与安适。 空间使用素净的底色,笔直利落的线条构建秩序,加上适当的留白,与格栅和金属元素的点缀,虚实之间,设计的高级质感跃然而出,并将居住引向契合心灵的最优状态。 #户型改造分析 ▲原始户型图 一线江景房,南面房间有很多阳台和露台可以浇筑出来,全部临江,景色优美,并且大多数房间都是朝南,采光好。但是有一个卫生间占用了餐厅的位置,导致餐厅空间太小。 ▲平面设计图 设计改动:拆除原本在餐厅的卫生间,扩大餐厅面积;在原来公卫的基础上做了双台盆的干区,扩大公卫的面积和使用效率;主卧衣柜做到床尾,整面墙的收纳充分满足了业主对于储物的需求。 空间整体是低调的白、灰色,再加一些米色棕色的点缀,清浅中附着出家的温情。顶面和墙面都有做金属线条,可以起到视觉拉伸和装饰的双重作用。公区域开敞,明亮的光线放大南北通透的空间感。 空间的陈设艺术往往具有着点石成金的神奇魔法。错落有致的格栅布局,分布在墙上,软装上,拉伸视觉的纵深感。橙色抱枕做活泼的跳色,皮艺沙发定位出轻奢格调,唤醒家的感官体验。 看得见的材质调度,看不见的工艺细节,只以匠心写入,静待俗尘生花,照见明媚。 一日三餐虽是简单的事,对每一个普通家庭来说却都有着重大的意义。餐厅空间是享食之地,也是家人日常交流情感的场所,杯盏碗碟之间,藏着最朴实的人间亲情。 优雅的艺术摆件与挂饰为餐厅营造恰当的氛围和仪式感,整面到顶的木作储物柜,及时解决餐厨的收纳需求。靠近阳台处做了小吧台,添加更多灵活的休闲空间。 厨房将零食柜藏进白色高柜中,保持视觉的干净整洁。橱柜上浅下深形成简单的层次,蒸烤箱等厨电都做了内嵌,让空间得到高效利用。 主卧的设计与主人的身份完美适配,米色的床品,优雅大方的背景装饰,既温柔又精致。阳台提供观景场所,美丽的湖光山色,让弥足珍贵的休憩时光得到超然于物质的升华。 男孩房的背景上我们用了一些缤纷气球点缀,来创造更有童趣感的卧室氛围。 颜色可以代表情绪,显示冷暖,甚至能做到“一眼显贵”,长辈房使用的爱马仕橙正是这样一种易展贵气的颜色,优雅时尚,兼顾活力与大方的个性。 卫浴空间墙地面使用哑光质感的灰色瓷砖,增强统一性,也方便打理。极致的纯粹感受,足以窥见主人对于高品质生活的追求。






















下一篇:可恶,又被嵌入式设计装到了
在线预约专享优惠
x
联系电话 :400-8800-618